n°2M822966

Appartamento 1 camera ammobiliato con terrazzo
(Hôpitaux-Facultés)

35.5 m² certificata
2
1 Camera
Hôpitaux-Facultés

L'appartamento è già stato affittato


Dettagli

  • 1° piano senza ascensore
  • Commerci nei dintorni
  • Terrazzo
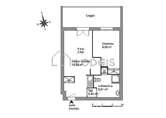
Questo appartamento ammobiliato di 36 m² si trova in Rue Edmond Lautard. Composto di 2 stanze di cui 1 camera, questo appartamento in affitto ammobiliato puo' accogliere fino a 2 persone. Questo appartamento al 1° piano senza ascensore, gode di una terrazza e di tutto cio' di cui si ha bisogno per un soggiorno in tutta tranquillità. Perfettamente collegato al resto della città grazie ai trasporti pubblici parigini, vicino al vostro alloggio troverete molti negozi e servizi ().
35.5 m² certificata - ~ 35.5 m²

Informazioni pratiche

Lingue parlate dal proprietario :
Francese Inglese 

Proposto da Lodgis da piu' di 3 anni

bilancio energetico

Diagnostica dell'impianto elettrico Diagnostica dell'impianto elettrico

Comfort

  • Terrazzo
  • Aria condizionata
  • Linea telefonica
  • Internet incluso
  • Tv via cavo
  • TV via satellite
  • Lavatrice
  • Asciugabiancheria
  • Lavastoviglie
  • Televisione
  • Biancheria
  • Congelatore
  • Ferro da stiro
  • Tostapane
  • Bollitore elettrico
  • Caffettiera
  • Vetri doppi

Servizi

  • Non fumatore
  • Ascensore
  • Piscina
  • Pulizie incluse
  • Garage
  • Citofono
  • Portinaia
  • Codice di accesso
  • Cantina
  • Ideale per delle coabitazione
  • Locale per biciclette
  • Posto auto in opzione
×

Questo appartamento non dispone ancora di una mappa interattiva

Clicca su una camera per vedere i dettagli e le foto..

Terrazzo
Soggiorno
Camera
Parking
Vicinanze

Dettagli dell'appartamento

Terrazzo

La terrazza di questo appartamento ti sedurrà. Questo spazio esterno sarà un vero "plus"per tuo soggiorno a Parigi, soprattutto durante le belle giornate.

Soggiorno

Questo appartamento é composto di un salone delle finestras. Questo salone é ammobiliato e equipaggiato per rendere il tuo soggiorno piacevole.

Camera

Delle finestras questa camera offre l'equipaggiamento necessario per riposarti durante il tuo soggiorno : 1 letto.

Parking

Questo appartamento dispone ugualmentea parking.

Vicinanze

Appartamento in affitto Rue Edmond Lautard, 34080

Vicinanze

Servizi di prossimità :

bubble-speech-1

8 lingue
parlate

hands-1

Un accompagnamento
personalizzato