No2M822966

Möblierte Wohnung 1 Schlafzimmer mit terasse
(Hôpitaux-Facultés)

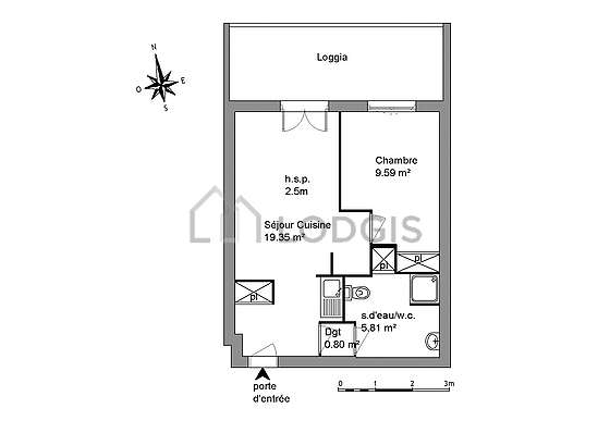
35.5 m² Wohnfläche
2
1 Schlafzimmer
Hôpitaux-Facultés

Diese Wohnung bereits ist vermietet


Wohnungs Informationen

  • Erste Etage Ohne Aufzug
  • Geschâfte in der Nähe
  • Terasse
eine Beschreibung ist möglich mit dem Format Französisch Englisch Spanisch Italienisch Portugiesisch
35.5 m² Wohnfläche - 35.5 m² Grundfläche

Andere Informationen

Besitzer spricht folgende Sprachen :
Französisch Englisch 

Zusammenarbeit mit Lodgis seit 3 Jahren

Die Energiebilanz

Energieprofil Energieprofil

Ausrüstung

  • Terasse
  • Klimaanlage
  • Telefonanschluss
  • Internet Verbindung
  • Kabelanschluss
  • Satellitenempfang
  • Waschmaschine
  • Wäschetrockner
  • Geschirrspülmachine
  • Fernseher
  • Bettwäsche
  • Gefrierschrank
  • Bügeleisen
  • Toaster
  • Wasserkocher
  • Kaffeemaschine
  • Doppel-Verglasung

Services

  • Nicht-Raucher
  • Aufzug
  • Schwimmbad
  • Inklusive Reinigung
  • Tiefgarage
  • Sprechanlage
  • Hausmeister
  • Digicode
  • Keller
  • Wohnungsgemeinschaft
  • Fahrradabstellplatz
  • Parkplatz zusätzlich
×

Diese Wohnung hat noch keinen interaktiven Plan

Klicken Sie auf eine Zimmer, um die Informationen sowie Fotos anzuschauen. .

Terasse
Wohnzimmer
Schlafzimmer
Parking
Umgebung

Zimmer Informationen

Terasse

Wohnzimmer

Fenster

Schlafzimmer

Fenster - Bettbreite 140

Parking

Fenster

Umgebung

Wohnung zu vermieten Rue Edmond Lautard, 34080

Umgebung

Services in der Nähe :

bubble-speech-1

8 gesprochene
Sprachen

hands-1

personalisierte
Begleitung