Apartamento Bordeaux Centre -
Apartamento Bordeaux Centre -
Apartamento Bordeaux Centre -
Apartamento Bordeaux Centre -
Apartamento Bordeaux Centre -
Apartamento Bordeaux Centre -
n°3B322422

Apartamento 1 dormitorio amueblado con terraza
(Bordeaux Centre)

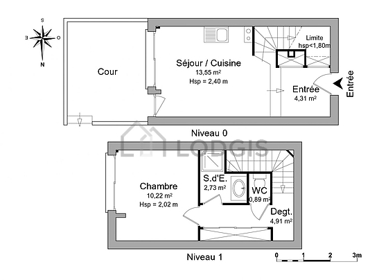
36.6 m² certificados
2
1 Dormitorio
Bordeaux Centre

823 € /mes (Gastos incluidos - ver detalles ver detalles)

Disponible ahora
Duracion del alquiler : min 9 meses


Información sobre el apartamento

  • bajo Sin ascensor
  • Negocios próximos
  • Terraza
Este apartamento amueblado de 37 m² está situado en Cours de la Somme. Este dúplex en alquiler amueblado puede alojar hasta 2 personas.
Situado en la planta baja, dispone de todo el equipamiento necesario para una estancia cómoda, así como de un verdadero dormitorio en la primera planta.
El uso de una terraza en la planta baja con acceso desde el salón completa esta propiedad.
Perfectamente comunicado por transporte público, también encontrará numerosos comercios y servicios en las inmediaciones.
36.6 m² certificados - aproximadamente 36.6 m²

Detalles

En Lodgis desde más de 4 años

balance energético

Diagnostico de performancia energetica Diagnostico de performancia energetica

Prestaciones

  • ventana doble cristal
  • Terraza
  • Lavadora
  • Aire Acondicionado
  • Internet todo incluído
  • Secadora
  • Lavavajilla
  • Televisor
  • ropa de cama
  • Congelador
  • Plancha
  • Tostador
  • Hervidor
  • Cafetera

Servicios

  • No Fumador
  • ascensor
  • Piscina
  • Limpieza incluida
  • Cochera
  • Intercomunicador
  • Portero
  • Código de acceso
  • Bodega
  • Perfecto para compartir
  • local para bicicletas
  • Plaza de parking opcional
×

Este apartamento no dispone todavía de un plano interactivo

Haga un click sobre una pieza para ver el detalle y las fotos.

Terraza
Salón
Dormitorio
Entreplanta
Entrada
Cuarto de baño
WC
Alrededores

Detalle de las piezas

Terraza (5 m²)

, la terraza de este apartamento os encantará. Este espacio exterior podrá aprovechar plenamente de su estancia en París, sobre todo los días soleados.

Salón (13 m²)

Este apartamento está formado por un salón ventanas doble acristalamiento. Este salón está amueblado y equipado para que su estancia sea agradable : placas eléctricas, refrigerador, horno, micro ondas, campana extractora, sofá, mesa, taburete.

Dormitorio (10 m²)

Ventanas doble acristalamiento esta habitación ofrece el equipamiento necesario para descansar durante su estancia : estantería, painting.

Entreplanta (4 m²)

Gracias a una altura del techo, un altillo ha sido instalado en este apartamento , ofreciéndole un verdadero espacio extra equipada con armario empotrado.

Entrada (4 m²)

Este apartamento posee tambiéna entrada equipada con armario empotrado, floor lamp.

Cuarto de baño (2 m²)

Este apartamento tiene una sala de baño. Este baño tiene todo lo necesario para su bienestar diario : armario empotrado, sink. El WC está separado de la sala del baño y ubicado en un espacio independiente.

WC

Este apartamento tiene el WC independiente.

Alrededores

Apartamento en alquiler Cours De La Somme, 33000

Alrededores

Servicios de proximidad :

×

disponibilidades

Disponible ahora
Duracion del alquiler : min 9 meses
  • Disponible

  • No disponible

Precio

Período Alquiler / mes(es) Gastos incluidos / mes(es)
A partir del 30 abril 2026 823 € Gastos incluidos 121 €

Los gastos de comunidad por el alquiler amueblado de este apartamento corresponden a :
  • los servicios proporcionados por el propietario con la vivienda : consumo de agua, calefacción
  • los servicios necesarios para el funcionamiento y el mantenimiento del inmueble (salvo particularidades en su contrato de alquiler) : el mantenimiento de las partes comunes, el impuesto de basura, la limpieza, la iluminación de las partes comunes
Gastos suplementarios durante su estancia :
  • Importe mensual de : Consumo de energía eléctrica
  • Honorarios de agencia : máximo 15 € IVA incl. / m² para un contrato de alquiler to sujeto a la ley francesa n° 89-462 de 6 de julio de 1989 o 15% IVA incl. del importe total del alquiler para un contrato no sujeto a la ley francesa n° 89-462 de 6 de julio de 1989. i Para más información, visite
    la página de tarifas de Lodgis.
  • Coste del check in : 3 € TTC/ m²
  • Fianza : hasta 2 meses de alquiler (segun el tipo de contrato firmado)
  • Previsión de limpieza (segun el tipo de contrato firmado)

opiniones (1)

4/5
Muy bueno
4/5

Hace olor a cañerías, sobretodo al hacer uso de la cisterna.

bubble-speech-1

8 idiomas
hablados

hands-1

Acompañamiento
personalizado