n°1M122847

Estudio amueblado con ascensor
(Centre ville)

29.9 m² certificados
1
estudio
Montpellier Centre

Este apartamento ha sido alquilado


Información sobre el apartamento

  • 4° planta ascensor
  • Negocios próximos
Este apartamento amueblado de 30 m² está situado en Rue Nouvelle. Este gran estudio en alquiler amueblado puede alojar hasta 1 persona. Este apartamento, esta en un 4° sin ascensor, tiene todo lo necesario para disfrutar de una auténtica estancia. Perfectamente conectado con los medios de transporte, encontrará cerca de su vivienda amueblada numerosos comercios y servicios ().
29.9 m² certificados - aproximadamente 29.9 m²

Detalles

Idiomas hablados por los propietarios :
Francés Inglés 

En Lodgis desde más de 3 años

balance energético

Diagnostico de performancia energetica Diagnostico de performancia energetica

Prestaciones

  • Aire Acondicionado
  • Línea de telefono
  • Internet todo incluído
  • Cable
  • Satélite
  • Lavadora
  • Secadora
  • Lavavajilla
  • Televisor
  • Terraza
  • ropa de cama
  • Congelador
  • Plancha
  • Tostador
  • Hervidor
  • Cafetera
  • ventana doble cristal

Servicios

  • No Fumador
  • ascensor
  • Piscina
  • Limpieza incluida
  • Cochera
  • Intercomunicador
  • Portero
  • Código de acceso
  • Bodega
  • Perfecto para compartir
  • local para bicicletas
  • Plaza de parking opcional
×

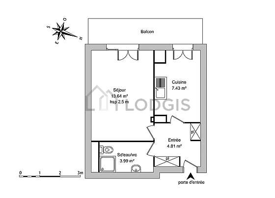
Este apartamento no dispone todavía de un plano interactivo

Haga un click sobre una pieza para ver el detalle y las fotos.

Salón
Cocina
Entrada
Cuarto de baño
Alrededores

Detalle de las piezas

Salón (14 m²)

Este apartamento está formado por un salón ventanas. Este salón está amueblado y equipado para que su estancia sea agradable : 1 cama.

Cocina (7 m²)

Este apartamento posee una cocinay todo el equipamiento indispensable para su vida diaria.

Entrada (5 m²)

Este apartamento posee tambiéna entrada.

Cuarto de baño (4 m²)

Este apartamento tiene una sala de baño. Este baño tiene todo lo necesario para su bienestar diario. El WC está separado de la sala del baño y ubicado en un espacio independiente.

Alrededores

Apartamento en alquiler Rue Nouvelle, 34070

Alrededores

Nivel : residencial

Servicios de proximidad :

opiniones (1)

4/5
Muy bueno
4/5

bubble-speech-1

8 idiomas
hablados

hands-1

Acompañamiento
personalizado