n°2M122879

Apartamento 1 dormitorio amueblado
(Centre ville)

28.7 m² certificados
2
1 Dormitorio
Montpellier Centre

Este apartamento ha sido alquilado


Información sobre el apartamento

  • 2° planta Sin ascensor
  • Negocios próximos
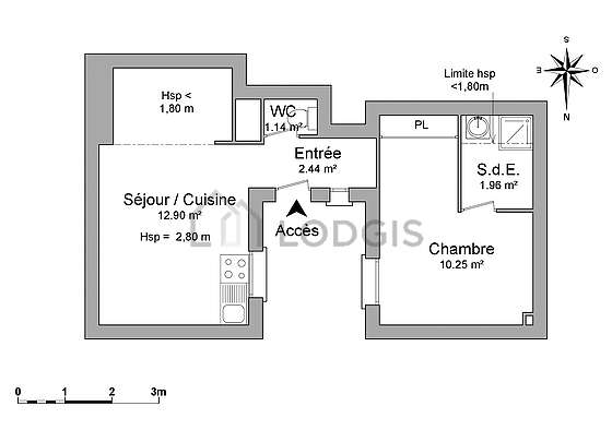
Este apartamento amueblado de 29 m² está situado en RUE JOSEPH VIDAL. Formado por 2 habitaciones, tiene 1 dormitorio. Este apartamento en alquiler amueblado puede alojar hasta 2 personas. Este apartamento, esta en un 2° sin ascensor, tiene todo lo necesario para hacerle sentir "como en su casa". Perfectamente conectado con los medios de transporte, encontrará cerca de su vivienda amueblada numerosos comercios y servicios ().
28.7 m² certificados - aproximadamente 28.7 m²

Detalles

Idiomas hablados por los propietarios :
Francés Inglés 

En Lodgis desde más de 3 años

balance energético

Logement à consommation énergétique excessive

Prestaciones

  • Lavavajilla
  • Lavadora
  • Aire Acondicionado
  • Línea de telefono
  • Internet todo incluído
  • Cable
  • Satélite
  • Secadora
  • Televisor
  • Terraza
  • ropa de cama
  • Congelador
  • Plancha
  • Tostador
  • Hervidor
  • Cafetera
  • ventana doble cristal

Servicios

  • No Fumador
  • ascensor
  • Piscina
  • Limpieza incluida
  • Cochera
  • Intercomunicador
  • Portero
  • Código de acceso
  • Bodega
  • Perfecto para compartir
  • local para bicicletas
  • Plaza de parking opcional
×

Este apartamento no dispone todavía de un plano interactivo

Haga un click sobre una pieza para ver el detalle y las fotos.

Salón
Cocina
Dormitorio
Entrada
Cuarto de baño
WC
Alrededores

Detalle de las piezas

Salón (13 m²)

Este apartamento está formado por un salón ventanas. Este salón está amueblado y equipado para que su estancia sea agradable.

Cocina

Este apartamento posee una cocina contiguo al salón con parquet en el sueloy todo el equipamiento indispensable para su vida diaria : placas eléctricas, refrigerador, micro ondas, campana extractora.

Dormitorio (10 m²)

Ventanas esta habitación ofrece el equipamiento necesario para descansar durante su estancia.

Entrada (2 m²)

Este apartamento posee tambiéna entrada.

Cuarto de baño (2 m²)

Este apartamento tiene una sala de baño. Este baño tiene todo lo necesario para su bienestar diario. El WC está separado de la sala del baño y ubicado en un espacio independiente.

WC (1 m²)

Este apartamento tiene el WC independiente.

Alrededores

Apartamento en alquiler RUE JOSEPH VIDAL, 34000

Alrededores

Nivel : popular

Nivel : animado

Servicios de proximidad :

bubble-speech-1

8 idiomas
hablados

hands-1

Acompañamiento
personalizado