n°3T122352

Apartamento 2 dormitorios amueblado con se aceptan animales y cochera
(Toulouse Centre)

59.6 m² certificados
4
2 Cuartos
Toulouse Centre

Este apartamento ha sido alquilado


Información sobre el apartamento

  • 2° planta Sin ascensor
  • Negocios próximos
  • Animales
59.6 m² certificados - aproximadamente 59.6 m²

Detalles

Idiomas hablados por los propietarios :
Francés Inglés 

En Lodgis desde más de 4 años

balance energético

Diagnostico de performancia energetica Diagnostico de performancia energetica

Prestaciones

  • Aire Acondicionado
  • Línea de telefono
  • Internet todo incluído
  • Cable
  • Satélite
  • Lavadora
  • Secadora
  • Lavavajilla
  • Televisor
  • Terraza
  • ropa de cama
  • Congelador
  • Plancha
  • Tostador
  • Hervidor
  • Cafetera
  • ventana doble cristal

Servicios

  • Cochera
  • ascensor
  • No Fumador
  • Piscina
  • Limpieza incluida
  • Intercomunicador
  • Portero
  • Código de acceso
  • Bodega
  • Perfecto para compartir
  • local para bicicletas
  • Plaza de parking opcional
×

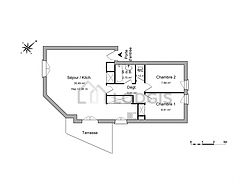
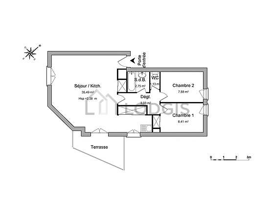
Este apartamento no dispone todavía de un plano interactivo

Haga un click sobre una pieza para ver el detalle y las fotos.

Salón
Cocina
Dormitorio
Dormitorio 2
Cuarto de baño
Cochera
Alrededores

Detalle de las piezas

Salón

Este apartamento está formado por un salón ventanas. Este salón está amueblado y equipado para que su estancia sea agradable.

Cocina

Este apartamento posee una cocinay todo el equipamiento indispensable para su vida diaria.

Dormitorio

Ventanas esta habitación ofrece el equipamiento necesario para descansar durante su estancia.

Dormitorio 2

Ventanas esta habitación ofrece el equipamiento necesario para descansar durante su estancia.

Cuarto de baño

Este apartamento tiene una sala de baño. Este baño tiene todo lo necesario para su bienestar diario. El WC está separado de la sala del baño y ubicado en un espacio independiente.

Cochera

Alrededores

Apartamento en alquiler AVENUE DE LA COLONNE, 31500

Alrededores

Servicios de proximidad :

bubble-speech-1

8 idiomas
hablados

hands-1

Acompañamiento
personalizado