n°2L821251

Appartamento 1 camera ammobiliato con garage, terrazzo e ascensore
(Lyon 8°)

50.0 m² certificata
2
1 Camera
Lyon 8°

€ 1 090 /mese (Spese condominilai incluse - guarda i detagli guarda i detagli )

Disponibile ora
Durata della locazione : min 3 mesi


Dettagli

  • 6° piano con ascensore
  • Commerci nei dintorni
  • Terrazzo
Questo appartamento ammobiliato di 50 m² si trova in Avenue Des Freres Lumieres. Composto di 2 stanze di cui 1 camera, questo appartamento in affitto ammobiliato puo' accogliere fino a 2 persone. Questo appartamento al 6° piano senza ascensore, gode di una terrazza e di tutto cio' di cui si ha bisogno per sentirsi "come a casa". Perfettamente collegato al resto della città grazie ai trasporti pubblici parigini, vicino al vostro alloggio troverete molti negozi e servizi ().
50.0 m² certificata - ~ 50.0 m²

Informazioni pratiche

Lingue parlate dal proprietario :
Francese Inglese 

Proposto da Lodgis da piu' di 4 anni

bilancio energetico

Diagnostica dell'impianto elettrico Diagnostica dell'impianto elettrico

Comfort

  • Vetri doppi
  • Terrazzo
  • Televisione
  • Aria condizionata
  • Linea telefonica
  • Internet incluso
  • Tv via cavo
  • TV via satellite
  • Lavatrice
  • Asciugabiancheria
  • Lavastoviglie
  • Biancheria
  • Congelatore
  • Ferro da stiro
  • Tostapane
  • Bollitore elettrico
  • Caffettiera

Servizi

  • Garage
  • Non fumatore
  • Ascensore
  • Piscina
  • Pulizie incluse
  • Citofono
  • Portinaia
  • Codice di accesso
  • Cantina
  • Ideale per delle coabitazione
  • Locale per biciclette
  • Posto auto in opzione
×

Questo appartamento non dispone ancora di una mappa interattiva

Clicca su una camera per vedere i dettagli e le foto..

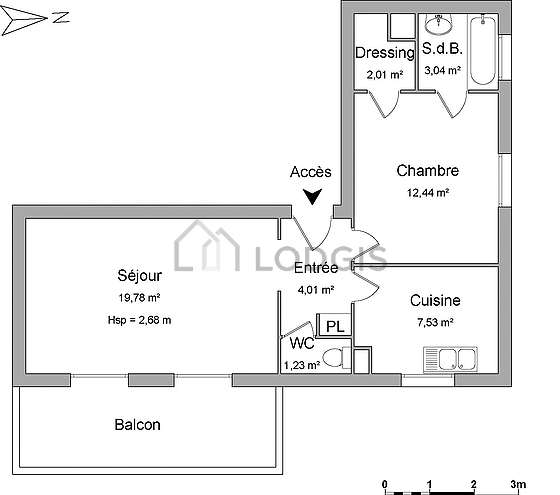
Terrazzo
Soggiorno
Cucina
Camera
Entrata
Guardaroba
Sala da bagno
WC
Garage
Vicinanze

Dettagli dell'appartamento

Terrazzo

La terrazza di questo appartamento ti delizierà. Questo spazio esterno ti permetterà di approfittare pienamente del tuo soggiorno a Parigi, soprattutto durante le belle giornate.

Soggiorno

Questo appartamento é composto di un salone delle finestras anti-rumore. Questo salone é ammobiliato e equipaggiato per rendere il tuo soggiorno piacevole : televisione, divano, tavola da pranzo, scrivania, 4 sedia (e)1 divano letto.

Cucina

Questo appartamento dispone di una cucina e tutto l'equipaggiamento indispensabile per la vita quotidiana : frigorifero, forno, bin.

Camera

Delle finestras questa camera offre l'equipaggiamento necessario per riposarti durante il tuo soggiorno : 1 letto.

Entrata

Questo appartamento dispone ugualmentea entrata.

Guardaroba

Per fornire piu' confort, questo appartamento é provvisto di un spogliatoio, un vero e proprio spazio, dove puoi sistemare tutte le tue cose durante il soggiorno.

Sala da bagno

Questo appartamento é equipaggiato di un bagno. Questo bagno é dotato di tutto il necessario per il tuo benessere quotidiano : vasca da bagno. Il WC é separato dal bagno ed é situato in un locale indipendente.

WC

Questo appartamento ha il WC indipendente

Garage

Vicinanze

Appartamento in affitto Avenue Des Freres Lumieres, 69008

Vicinanze

Servizi di prossimità :
Supermercato - Mercato - Giornalaio - Fitness center - Cinema - Museo - Macelleria - Fornaio - Alimentari - Farmacia - Ristorante

×

Disponibilità

Disponibile ora
Durata della locazione : min 3 mesi
  • Disponibile

  • Non disponibile

Prezzo

Periodo Canone / mese Spese condominilai incluse / mese
a partire dal 03 dicembre 2025 € 1 090 Spese condominilai incluse € 96

Le spese per l'affitto di questo questo appartamento corrispondono :
  • ai servizi forniti dal proprietario nell'appartamento : consumazione d'acqua
  • ai servizi necessari al funzionamento e al buon mantenimento del palazzo (salvo indicazioni particolari sul vostro contratto di affitto) : la pulizia e la manutenzione delle parti comuni, la tassa sull'immondizia, l'illuminazione delle parti comuni
Costi aggiuntivi da prevedere per il tuo soggiorno:
  • Consumi energetici mensili :
  • Commissioni d'agenzia: max 15 € IVA inclusa / m² per un contratto di locazione soggetto alla legge francese n. 89-462 del 6 luglio 1989 o 15% IVA inclusa dell'importo totale dell'affitto per un contratto di locazione non soggetto alla legge francese n. 89-462 del 6 luglio 1989. i Per maggiori dettagli, visitate
    la pagina delle tariffe di Lodgis.
  • Onorari per check in professionale : 3€/m²
  • Deposito cauzionale: fino a 2 mesi d'affitto (a seconda del tipo di contratto firmato)
  • Previsionale pulizie finali (a seconda del tipo di contratto firmato)
bubble-speech-1

8 lingue
parlate

hands-1

Un accompagnamento
personalizzato