Monolocale ammobiliato Paris 7°
Lingue parlate dal proprietario :
Proposto da Lodgis da piu' di 4 anni
Logement à consommation énergétique excessive

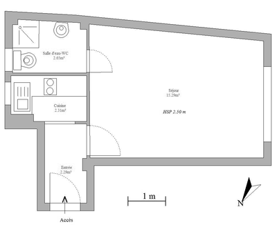
Questo appartamento é composto di un salone delle finestras. Questo salone é ammobiliato e equipaggiato per rendere il tuo soggiorno piacevole.
Questo appartamento dispone di una cucina e tutto l'equipaggiamento necessario per la vita quotidiana.
Livello : prestigioso
Stazione : La Tour Maubourg
Nel 7° arrondissement di Parigi, sulla riva sinistra della Senna, il quartiere degli Invalides è allo stesso tempo uno dei più chic della capitale e uno dei più turistici. Infatti, le sue eleganti strade e le sue abitazioni prestigiose attirano una popolazione benestante, mentre i suoi monumenti storici e i suoi musei rinomati raccolgono ogni giorno migliaia di turisti. Si viene nel quartiere degli Invalides sia per scoprire l'Assemblea Nazionale, la tomba di Napoleone e il museo Rodin, sia per passeggiare tra le gallerie d'arte e le boutique di lusso
La nostra offerta di appartamenti del quartiere Invalides
La nostra offerta di appartamenti del 7 distretto di Parigi
Servizi di prossimità :