Wohnung Bordeaux Centre -
Wohnung Bordeaux Centre -
Wohnung Bordeaux Centre -
Wohnung Bordeaux Centre -
Wohnung Bordeaux Centre -
Wohnung Bordeaux Centre -
Wohnung Bordeaux Centre -
Wohnung Bordeaux Centre -
Wohnung Bordeaux Centre -
Wohnung Bordeaux Centre -
Wohnung Bordeaux Centre -
Wohnung Bordeaux Centre -
Wohnung Bordeaux Centre -
Wohnung Bordeaux Centre -
Wohnung Bordeaux Centre -
Wohnung Bordeaux Centre -
Wohnung Bordeaux Centre -
Wohnung Bordeaux Centre -
Wohnung Bordeaux Centre -
Wohnung Bordeaux Centre -
Wohnung Bordeaux Centre -
Wohnung Bordeaux Centre -
Wohnung Bordeaux Centre -
Wohnung Bordeaux Centre -
No2B322367

Möblierte Wohnung 1 Schlafzimmer mit aufzug
(Bordeaux Centre)

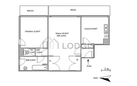
53.6 m² Wohnfläche
2
1 Schlafzimmer
Bordeaux Centre

Diese Wohnung bereits ist vermietet


Wohnungs Informationen

  • 3. Etage Mit Aufzug
  • Klarer Sicht auf Strasse
  • Geschâfte in der Nähe
eine Beschreibung ist möglich mit dem Format Französisch Englisch Spanisch Italienisch Portugiesisch
53.6 m² Wohnfläche - 53.6 m² Grundfläche

Andere Informationen

Besitzer spricht folgende Sprachen :
Französisch Englisch 

Zusammenarbeit mit Lodgis seit 4 Jahren

Die Energiebilanz

Energieprofil Energieprofil

Ausrüstung

  • Doppel-Verglasung
  • Bügeleisen
  • Waschmaschine
  • Klimaanlage
  • Internet Verbindung
  • Wäschetrockner
  • Geschirrspülmachine
  • Fernseher
  • Terasse
  • Bettwäsche
  • Gefrierschrank
  • Toaster
  • Wasserkocher
  • Kaffeemaschine

Services

  • Nicht-Raucher
  • Aufzug
  • Schwimmbad
  • Inklusive Reinigung
  • Tiefgarage
  • Sprechanlage
  • Hausmeister
  • Digicode
  • Keller
  • Wohnungsgemeinschaft
  • Fahrradabstellplatz
  • Parkplatz zusätzlich
×

Diese Wohnung hat noch keinen interaktiven Plan

Klicken Sie auf eine Zimmer, um die Informationen sowie Fotos anzuschauen. .

Wohnzimmer
Küche
Schlafzimmer
Badezimmer
WC
Umgebung

Zimmer Informationen

Wohnzimmer

Sofa - Esstisch - Kleiner Tisch - Kleiderkammer - Wandschrank

Fenster - Klarer Sicht auf Strasse - Parkett

Küche

getrennt

Schlafzimmer

Bettwäsche - Kleiderkammer - Schrank - Wandschrank

Fenster - Klarer Sicht auf Strasse - Parkett - Bettbreite 140

Badezimmer

Kleidertrockner-Heizkörper

Klarer Sicht auf Strasse - Linoleum

WC

Linoleum

Umgebung

Wohnung zu vermieten Rue Joseph Abria, 33000

Umgebung

Services in der Nähe :

bubble-speech-1

8 gesprochene
Sprachen

hands-1

personalisierte
Begleitung