Apartamento Port-Marianne -
Apartamento Port-Marianne -
Apartamento Port-Marianne -
Apartamento Port-Marianne -
Apartamento Port-Marianne -
Apartamento Port-Marianne -
Apartamento Port-Marianne -
Apartamento Port-Marianne -
Apartamento Port-Marianne -
Apartamento Port-Marianne -
Apartamento Port-Marianne -
Apartamento Port-Marianne -
Apartamento Port-Marianne -
Apartamento Port-Marianne -
Apartamento Port-Marianne -
Apartamento Port-Marianne -
n°2M222858

Apartamento 1 dormitorio amueblado con ascensor
(Port-Marianne)

32.0 m² certificados
2
1 Dormitorio
Port-Marianne

Este apartamento ha sido alquilado


Información sobre el apartamento

  • 4° planta ascensor
  • Negocios próximos
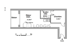
Este apartamento amueblado de 32 m² está situado en Place Des Patriotes. Formado por 2 habitaciones, tiene 1 dormitorio. Este apartamento en alquiler amueblado puede alojar hasta 2 personas. Este apartamento, esta en un 4° sin ascensor, tiene todo lo necesario para hacerle sentir "como en casa". Perfectamente conectado con los medios de transporte, encontrará cerca de su vivienda amueblada numerosos comercios y servicios ().
32.0 m² certificados - aproximadamente 32.0 m²

Detalles

Idiomas hablados por los propietarios :
Francés Inglés 

En Lodgis desde más de 4 años

balance energético

Diagnostico de performancia energetica Diagnostico de performancia energetica

Prestaciones

  • Aire Acondicionado
  • Internet todo incluído
  • Lavadora
  • Secadora
  • Lavavajilla
  • Televisor
  • Terraza
  • ropa de cama
  • Congelador
  • Plancha
  • Tostador
  • Hervidor
  • Cafetera
  • ventana doble cristal

Servicios

  • No Fumador
  • ascensor
  • Piscina
  • Limpieza incluida
  • Cochera
  • Intercomunicador
  • Portero
  • Código de acceso
  • Bodega
  • Perfecto para compartir
  • local para bicicletas
  • Plaza de parking opcional
×

Este apartamento no dispone todavía de un plano interactivo

Haga un click sobre una pieza para ver el detalle y las fotos.

Salón
Cocina
Dormitorio
Cuarto de baño
Alrededores

Detalle de las piezas

Salón (21 m²)

Este apartamento está formado por un salón ventanas. Este salón está amueblado y equipado para que su estancia sea agradable.

Cocina

Este apartamento posee una cocina contiguo al salóny todo el equipamiento indispensable para su vida diaria.

Dormitorio (6 m²)

Ventanas esta habitación ofrece el equipamiento necesario para descansar durante su estancia.

Cuarto de baño (4 m²)

Este apartamento tiene una sala de baño. Este baño tiene todo lo necesario para su bienestar diario. El WC está separado de la sala del baño y ubicado en un espacio independiente.

Alrededores

Apartamento en alquiler Place Des Patriotes, 34000

Alrededores

Servicios de proximidad :

bubble-speech-1

8 idiomas
hablados

hands-1

Acompañamiento
personalizado