Appartamento Port-Marianne -
Appartamento Port-Marianne -
Appartamento Port-Marianne -
Appartamento Port-Marianne -
Appartamento Port-Marianne -
Appartamento Port-Marianne -
Appartamento Port-Marianne -
Appartamento Port-Marianne -
Appartamento Port-Marianne -
Appartamento Port-Marianne -
Appartamento Port-Marianne -
Appartamento Port-Marianne -
Appartamento Port-Marianne -
Appartamento Port-Marianne -
Appartamento Port-Marianne -
Appartamento Port-Marianne -
n°2M222858

Appartamento 1 camera ammobiliato con ascensore
(Port-Marianne)

32.0 m² certificata
2
1 Camera
Port-Marianne

L'appartamento è già stato affittato


Dettagli

  • 4° piano con ascensore
  • Commerci nei dintorni
Questo appartamento ammobiliato di 32 m² si trova in Place Des Patriotes. Composto di 2 stanze di cui 1 camera, questo appartamento in affitto ammobiliato puo' accogliere fino a 2 persone. Questo appartamento al 4° piano senza ascensore, gode di tutto cio' di cui si ha bisogno per un soggiorno parigino riuscito. Perfettamente collegato al resto della città grazie ai trasporti pubblici parigini, vicino al vostro alloggio troverete molti negozi e servizi ().
32.0 m² certificata - ~ 32.0 m²

Informazioni pratiche

Lingue parlate dal proprietario :
Francese Inglese 

Proposto da Lodgis da piu' di 4 anni

bilancio energetico

Diagnostica dell'impianto elettrico Diagnostica dell'impianto elettrico

Comfort

  • Aria condizionata
  • Internet incluso
  • Lavatrice
  • Asciugabiancheria
  • Lavastoviglie
  • Televisione
  • Terrazzo
  • Biancheria
  • Congelatore
  • Ferro da stiro
  • Tostapane
  • Bollitore elettrico
  • Caffettiera
  • Vetri doppi

Servizi

  • Non fumatore
  • Ascensore
  • Piscina
  • Pulizie incluse
  • Garage
  • Citofono
  • Portinaia
  • Codice di accesso
  • Cantina
  • Ideale per delle coabitazione
  • Locale per biciclette
  • Posto auto in opzione
×

Questo appartamento non dispone ancora di una mappa interattiva

Clicca su una camera per vedere i dettagli e le foto..

Soggiorno
Cucina
Camera
Sala da bagno
Vicinanze

Dettagli dell'appartamento

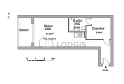
Soggiorno (21 m²)

Questo appartamento é composto di un salone delle finestras. Questo salone é ammobiliato e equipaggiato per rendere il tuo soggiorno piacevole.

Cucina

Questo appartamento dispone di una cucina adiacent al soggiorno e tutto l'equipaggiamento essenziale per la vita quotidiana.

Camera (6 m²)

Delle finestras questa camera offre l'equipaggiamento necessario per riposarti durante il tuo soggiorno.

Sala da bagno (4 m²)

Questo appartamento é equipaggiato di un bagno. Questo bagno é dotato di tutto il necessario per il tuo benessere quotidiano. Il WC é separato dal bagno ed é situato in un locale indipendente.

Vicinanze

Appartamento in affitto Place Des Patriotes, 34000

Vicinanze

Servizi di prossimità :

bubble-speech-1

8 lingue
parlate

hands-1

Un accompagnamento
personalizzato