Appartement Toulouse Centre -
Appartement Toulouse Centre -
Appartement Toulouse Centre -
Appartement Toulouse Centre -
Appartement Toulouse Centre -
Appartement Toulouse Centre -
Appartement Toulouse Centre -
Appartement Toulouse Centre -
Appartement Toulouse Centre -
Appartement Toulouse Centre -
Appartement Toulouse Centre -
Appartement Toulouse Centre -
Appartement Toulouse Centre -
Appartement Toulouse Centre -
Appartement Toulouse Centre -
Appartement Toulouse Centre -
n°2T122365

Appartement 1 chambre meublé avec accès handicapé
(Toulouse Centre)

48.2 m² certifiée
2
1 Chambre
Toulouse Centre


Informations sur le bien

  • rez de chaussée sans ascenseur
  • Commerces à proximité
  • Accès handicapé
Cet appartement meublé de 48 m² est situé RUE ANTONIO VIVALDI. Composé de 2 pièces dont 1 chambre, cet appartement en location meublée peut accueillir jusqu'à 2 personnes. Cet appartement au rez-de-chaussée, bénéficie de l'équipement nécessaire pour un séjour réussi. Parfaitement desservi par les transports en commun, vous trouverez à proximité de nombreux commerces et services ().
48.2 m² certifiée - 48.2 m² au sol.

Détails pratiques

Langues parlées par les propriétaires :
Français Anglais 

Chez Lodgis depuis plus de 4 ans

Bilan énergétique

Diagnostic de performance énergétique Diagnostic de performance énergétique

Logement à consommation énergétique excessive



Equipements

  • Air conditionné
  • Internet tout compris
  • Lave linge
  • Sèche linge
  • Lave vaisselle
  • Télé
  • Terrasse
  • Linge de maison
  • Congélateur
  • Fer à repasser
  • Grille pain
  • Bouilloire électrique
  • Cafetière
  • Double vitrage

Services

  • Ascenseur
  • Non fumeurs
  • Piscine
  • Ménage hebdomadaire inclus dans le loyer
  • Garage
  • Interphone
  • Concierge
  • Digicode
  • Cave
  • Idéal colocations
  • Local à vélos
  • Place de parking en option
×

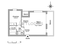
Cet appartement ne dispose pas encore de plan interactif

Cliquer sur une pièce pour voir le détail et les photos..

Séjour
Cuisine
Chambre
Salle de bain

Détail des pièces

Séjour

Cet appartement est composé d'un salon des fenêtres. Ce salon est meublé et équipé pour rendre votre séjour agréable.

Cuisine

Cet appartement dispose d'une cuisine et tout l'équipement nécessaire pour votre quotidien.

Chambre

Des fenêtres cette chambre offre l'équipement nécessaire pour vous reposer pendant votre séjour.

Salle de bain

Cet appartement est équipé d'une salle de bain. Cette salle d'eau bénéficie du nécessaire pour votre bien-être au quotidien. Les toilettes sont séparées de la salle de bain et situées dans une pièce indépendante.

Appartement à louer RUE ANTONIO VIVALDI, Toulouse 31300

Environnement

Services proches :

bubble-speech-1

8 langues
parlées

hands-1

accompagnement
personnalisé