N.2M122879

アパルトマン 家具付き 1ベッドルーム RUE JOSEPH VIDAL, Montpellier -

法廷基準に沿った面積28.7 m²
2
1 ベッドルーム
Montpellier Centre

このアパートは、すでにレンタルされています


物件の詳細

  • 2 階 エレベーター無
  • 近隣の商店
法廷基準に沿った面積28.7 m² - 床面積28.7 m²

詳細

大家が話す言語 :
フランス語 英語 

ロジスとの取引歴は3年

エネルギー効率

Logement à consommation énergétique excessive

備品

  • ディッシュウォッシャー
  • 洗濯機
  • エアコン
  • 電話線
  • インターネット
  • ケーブル
  • サテライト
  • 乾燥機
  • テレビ
  • テラス
  • リネン
  • 冷凍庫
  • アイロン
  • トースター
  • やかん
  • コーヒーメーカー
  • 二重窓

設備

  • 禁煙
  • エレベーター
  • プール
  • 掃除有り
  • 駐車場
  • インターフォン
  • 管理人
  • デジコード式ドア
  • 地下室
  • ルームメイト
  • 自転車置場
  • パーキングスペース(オプション)
×

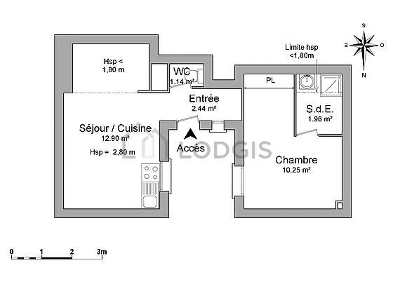
この物件には見取り図が用意されておりません

見取り図上で部屋をクリックすると詳細と写真がご覧いただけます。.

リビングルーム
キッチン
ベッドルーム
玄関
バスルーム
トイレ
近所の状況

部屋の詳細

リビングルーム (13 m²)

キッチン

料理加熱台 - 冷蔵庫 - 電子レンジ - 換気扇

オープンキッチン - ウッドフロアー

ベッドルーム (10 m²)

玄関 (2 m²)

バスルーム (2 m²)

トイレ (1 m²)

近所の状況

アパルトマン 賃貸物件 RUE JOSEPH VIDAL, 34000

近所の状況

グレード : 下町クラス

グレード : 活気のある

近隣の様子 :

bubble-speech-1

8ヶ
国語対応

hands-1

ニーズにあったサ
ービスの提供