N.2T122365

アパルトマン 家具付き 1ベッドルーム RUE ANTONIO VIVALDI, Toulouse -

法廷基準に沿った面積48.2 m²
2
1 ベッドルーム
Toulouse Centre

このアパートは、すでにレンタルされています


物件の詳細

  • 1階(日本式) エレベーター無
  • 近隣の商店
  • ペット
  • バリアフリー
法廷基準に沿った面積48.2 m² - 床面積48.2 m²

詳細

大家が話す言語 :
フランス語 英語 

ロジスとの取引歴は4年

エネルギー効率

エネルギー効率 エネルギー効率

Logement à consommation énergétique excessive



備品

  • エアコン
  • 電話線
  • インターネット
  • ケーブル
  • サテライト
  • 洗濯機
  • 乾燥機
  • ディッシュウォッシャー
  • テレビ
  • テラス
  • リネン
  • 冷凍庫
  • アイロン
  • トースター
  • やかん
  • コーヒーメーカー
  • 二重窓

設備

  • エレベーター
  • 禁煙
  • プール
  • 掃除有り
  • 駐車場
  • インターフォン
  • 管理人
  • デジコード式ドア
  • 地下室
  • ルームメイト
  • 自転車置場
  • パーキングスペース(オプション)
×

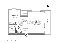
この物件には見取り図が用意されておりません

見取り図上で部屋をクリックすると詳細と写真がご覧いただけます。.

リビングルーム
キッチン
ベッドルーム
バスルーム

部屋の詳細

リビングルーム

キッチン

セパレート

ベッドルーム

バスルーム

アパルトマン 賃貸物件 RUE ANTONIO VIVALDI, 31300

近所の状況

近隣の様子 :

bubble-speech-1

8ヶ
国語対応

hands-1

ニーズにあったサ
ービスの提供