Apartamento Toulouse Centre -
Apartamento Toulouse Centre -
Apartamento Toulouse Centre -
Apartamento Toulouse Centre -
Apartamento Toulouse Centre -
Apartamento Toulouse Centre -
Apartamento Toulouse Centre -
Apartamento Toulouse Centre -
Apartamento Toulouse Centre -
Apartamento Toulouse Centre -
Apartamento Toulouse Centre -
Apartamento Toulouse Centre -
Apartamento Toulouse Centre -
Apartamento Toulouse Centre -
No.2T122561

Apartamento 1 quarto mobiliado com acesso para deficientes, garagem e terraça
(Toulouse Centre)

39.4 m² certificados
2
1 Quarto
Toulouse Centre

Este apartamento já foi alugado


Informações sobre o imovel

  • rés-do-chaõ sem elevador
  • Comercio proximos
  • Terraça
  • Acesso para deficientes
Este apartamento mobilado de 39 m² se situa em RUE DE LAS BRUGUES. Composto por 2 peças com 1 quarto, este apartamento em renda mobilada pode acolher até 2 pessoas. Este apartamento no rés-do-chaõ, beneficia de equipamento necessário para uma estadia em exitosa. Perfeitamente servido por transporte público, você encontrará perto do apartamento mobilado numerosos comércios e serviços ().
39.4 m² certificados - tamanho aproximado 39.4 m²

Detalhes praticos

Línguas faladas pelos proprietários :
Francês Inglês 

Com a Lodgis ha mais de 4 anos

bilão energético

Diagnostic de performance énergétique Diagnostic de performance énergétique

Equipamentos

  • Máquina de café
  • Terraça
  • Máquina de lavar
  • Ar condicionado
  • Internet tudo incluído
  • Máquina de secar
  • Màquina de lavar a loiça
  • Televisaõ
  • roupa de cama
  • Congelador
  • Ferro
  • Torradeira
  • Chaleira
  • Janelas Duplas

Serviços

  • Local para as bicicletas
  • Interfone
  • Garagem
  • Não fumantes
  • Elevador
  • Piscina
  • Limpeza incluída
  • Porteiro
  • Código de acesso
  • Cave
  • Ideal para colocação
  • Lugar de estacionamento opcional
×

Virtual tour

The virtual tour isn't working? Check that your web browser is up-to-date by clicking here

×

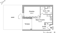
Esse apartamento não dispõe de um plano interativo pelo momento

Clique em um dos cômodos para obter mais detalhes e ver as fotos..

Terraça
Salaõ
Cozinha
Quarto
Entrada
Casa de banho
Garagem

Detalhes do apartamento

Terraça

O terraço de este apartamento vai lhe seduzi-lo. Este espaço exterior sera uma verdadeira vantagem para sua estância em Paris, sobretudo os dias de sol.

Salaõ

Este apartamento é composto de um salão janelas. Este salão mobiliado et equipado para uma agradável estância : sofá, mesinha, biblioteca.

Cozinha

Este apartamento tem uma cozinha e todo o equipamento pela sua vida quotidiana : fogaõ, frigorífico, forno, microondas, exaustur, máquina de café, mesa de jantar, mesinha, armário, banco.

Quarto

Janelas este quarto oferece o equipamento necessário para descansar durante sua estância : secretária, 1 cadeira(s), mesinha de cabeceira, lamp1 colchaõ.

Entrada

Este apartamento dispõe tambéma entrada.

Casa de banho

Este apartamento é equipado de uma casa de banho. Esta sala de água dispõe do necessário pelo seu bem estar na sua vida quotidiana : prateleira, ducheiro separado, sink. Os WC são integrados na casa de banho.

Garagem

Apartamento para alugar RUE DE LAS BRUGUES, 31100

Ambiente

Serviços proximos :
Supermercado - Parque - Mercado - Fitness center - Cinema - Escola - Talho - Padaria - mercearia - Farmácia - Restaurante - Creche

bubble-speech-1

8 linguas
faladas

hands-1

Um acompanhamento
personalizado