Квартира Hôpitaux-Facultés -
Квартира Hôpitaux-Facultés -
Квартира Hôpitaux-Facultés -
Квартира Hôpitaux-Facultés -
Квартира Hôpitaux-Facultés -
Квартира Hôpitaux-Facultés -
Квартира Hôpitaux-Facultés -
Квартира Hôpitaux-Facultés -
Квартира Hôpitaux-Facultés -
Квартира Hôpitaux-Facultés -
Квартира Hôpitaux-Facultés -
Квартира Hôpitaux-Facultés -
№1M822948

Квартира меблированное студия Avenue Des Moulins, Montpellier -

27.5 m² сертифицированно
1
однокомнатная
Hôpitaux-Facultés

600 € /месяц (коммунальные услуги включены - смотрите подробности смотрите подробности)

Свободна сейчас
Период аренды : мин 1 месяц


Информация про квартиру

  • 3ий этаж без лифта
  • Ближайшие магазины
27.5 m² сертифицированно - 27.5 m² чистая площадь

Детали

разговорные языки владельцев :
Французкий Английский 

Предлагается в аренду агентством Lodgis 4 лет

Энергетическая характеристика

Диагностика энергетической эффективности Диагностика энергетической эффективности

Сервис в квартире

  • Кондиционированный воздух
  • Интернет
  • Стиральная машина
  • Сушилка для белья
  • Посудамоечная машина
  • Телевизор
  • Терраса
  • Постельное бельё
  • Морозилка
  • Гладельный утюг
  • Тостер
  • Электрический чайник
  • Кофейник
  • Двухслойные стёкла

Сервис

  • Некурящий
  • Лифт
  • Бассейн
  • С уборкой
  • Гараж
  • Домофон
  • Консьерж
  • Digicode
  • Подвал
  • для соседа по комнате
  • Велосипедное помещение
  • парковка как дополнительная услуга
×

Virtual tour

The virtual tour isn't working? Check that your web browser is up-to-date by clicking here

×

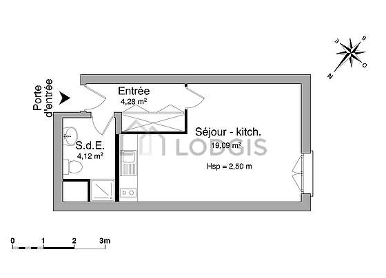
Данная квартира пока не располагает интерактивном планом

Подведите курсор на комнату, что бы увидеть детальное описание и фотографии..

Гостиная
Кухня
Ванная
Окрестности

Описание комнат

Гостиная (19 m²)

Одеяло - 1 Кресел - Стол - Бюро - Коммод - 1 Стульев

Окно - Разкладуйщийся диван (0 cm)

Кухня

Плитка - Микроволноя духовка - hood - Стенной шкаф - soup plates - dessert plates - plates - bowl - casserole dish - chopping board - stove - water glass

Кухонька

Ванная (4 m²)

towel rack

Окрестности

Квартира в аренду Avenue Des Moulins, 34080

Окрестности

Услуги поблизости :
Супермаркет - Парк - школа - больница - Бакалея - Аптека - Ресторан - Tennis court

×

Свободные даты

Свободна сейчас
Период аренды : мин 1 месяц
  • Свободна

  • Не свободна

Цены

период Квартплата / месяц коммунальные услуги включены / месяц
C 09 May 2026 600 € коммунальные услуги включены 60 €

Коммунальные услуги для меблированной аренды этой this квартира соответствуют :
  • услугам, необходимым для функционирования и поддержания в надлежащем состоянии здания (кроме особых случаев, указанных в контракте) : уход за общими помещениями, налог на вывоз мусора, налог на оплату технического персонала, освещение общих помещений
Дополнительные платы для Вашей аренды :
  • Месячные выплаты за энергию :
  • Гонорар агенства: не более 15 € TTC / м² при аренде в соответствии с законом Франции № 89-462 от 6 июля 1989 года или 15% от общей суммы аренды при аренде, не подпадающей под действие закона № 89-462 от 6 июля 1989 года.  i Более подробную информацию можно найти на странице
    тарифов Lodgis.
  • Плата за проведение въезда и выезда : 3 € / m²
  • Гарантийный депозит: может достигать размера двухмесячной арендной платы (зависит от типа контракта)
  • Предоплата за уборку (зависит от типа контракта)
bubble-speech-1

разговариваем на
8 языках

hands-1

персональный
подход