Wohnung Hôpitaux-Facultés -
Wohnung Hôpitaux-Facultés -
Wohnung Hôpitaux-Facultés -
Wohnung Hôpitaux-Facultés -
Wohnung Hôpitaux-Facultés -
Wohnung Hôpitaux-Facultés -
Wohnung Hôpitaux-Facultés -
Wohnung Hôpitaux-Facultés -
Wohnung Hôpitaux-Facultés -
Wohnung Hôpitaux-Facultés -
Wohnung Hôpitaux-Facultés -
Wohnung Hôpitaux-Facultés -
No1M822948

Möblierte Studio
(Hôpitaux-Facultés)

27.5 m² Wohnfläche
1
Studio
Hôpitaux-Facultés

600 € /Monat (Inklusiv Nebenkosten - siehe Einzelheiten siehe Einzelheiten)

Jetztverfügbar
Mietperiode : Minimum 1 Monat(e)


Wohnungs Informationen

  • 2. Etage Ohne Aufzug
  • Geschâfte in der Nähe
eine Beschreibung ist möglich mit dem Format Französisch Spanisch Italienisch Portugiesisch Englisch
27.5 m² Wohnfläche - 27.5 m² Grundfläche

Andere Informationen

Besitzer spricht folgende Sprachen :
Französisch Englisch 

Zusammenarbeit mit Lodgis seit 4 Jahren

Die Energiebilanz

Energieprofil Energieprofil

Ausrüstung

  • Klimaanlage
  • Internet Verbindung
  • Waschmaschine
  • Wäschetrockner
  • Geschirrspülmachine
  • Fernseher
  • Terasse
  • Bettwäsche
  • Gefrierschrank
  • Bügeleisen
  • Toaster
  • Wasserkocher
  • Kaffeemaschine
  • Doppel-Verglasung

Services

  • Nicht-Raucher
  • Aufzug
  • Schwimmbad
  • Inklusive Reinigung
  • Tiefgarage
  • Sprechanlage
  • Hausmeister
  • Digicode
  • Keller
  • Wohnungsgemeinschaft
  • Fahrradabstellplatz
  • Parkplatz zusätzlich
×

Virtual tour

The virtual tour isn't working? Check that your web browser is up-to-date by clicking here

×

Diese Wohnung hat noch keinen interaktiven Plan

Klicken Sie auf eine Zimmer, um die Informationen sowie Fotos anzuschauen. .

Wohnzimmer
Küche
Badezimmer
Umgebung

Zimmer Informationen

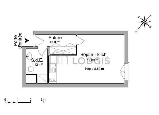
Wohnzimmer (19 m²)

Bettwäsche - Sitz - Esstisch - Arbeitstisch - Kommode - Sitze

Fenster - Sofabett (0 cm)

Küche

Kochplatte - Mikrowelle - Abzug - Wandschrank - soup plates - dessert plates - plates - bowl - casserole dish - chopping board - stove - water glass

Kochnische

Badezimmer (4 m²)

towel rack

Umgebung

Wohnung zu vermieten Avenue Des Moulins, 34080

Umgebung

Services in der Nähe :
Supermarkt - Park - Schule - Krankenhaus - Krämerladen - Apotheke - Restaurant - Tennis court

×

Verfügbarkeit

Jetztverfügbar
Mietperiode : Minimum 1 Monat(e)
  • Verfügbar

  • Unverfügbar

Preise

Zeitraum die Miete / Monat(e) Inklusiv Nebenkosten / Monat(e)
Ab 09 Mai 2026 600 € Inklusiv Nebenkosten 60 €

Die Gebühren für möblierte Vermietung dieses wohnung entsprechen:
  • mit Dienstleistungen, die für den Betrieb und die Instandhaltung des Gebäudes (wenn nicht anders in Ihrem Mietvertrag festgelegt): Wartung von öffentlichen Bereichen, die Gebühr für Müll, Kehren Steuer Beleuchtung von öffentlichen Bereichen
Zusätzliche Kosten währen Ihrem Aufenthalt :
  • Verbrauch :
  • Agenturgebühren: max. 15 € inkl. MwSt./m² für einen Mietvertrag, der dem französischen Gesetz Nr. 89-462 vom 6. Juli 1989 unterliegt, oder 15% inkl. MwSt. des Gesamtmietpreises für einen Mietvertrag, der nicht dem Gesetz Nr. 89-462 vom 6. Juli 1989 unterliegt.  i Weitere Einzelheiten finden
    Sie auf der Lodgis-Honorarseite.
  • Check in Gebürhen : 3€ TTC / m²
  • Kaution: bis 2 Monatsmieten (je nach Mietvertrag)
  • Rückabre Check out Hausaltsgebühren (je nach Mietvertrag)
bubble-speech-1

8 gesprochene
Sprachen

hands-1

personalisierte
Begleitung