Wohnung Montpellier Centre -
Wohnung Montpellier Centre -
Wohnung Montpellier Centre -
Wohnung Montpellier Centre -
Wohnung Montpellier Centre -
Wohnung Montpellier Centre -
No2M122957

Möblierte Wohnung 1 Schlafzimmer mit aufzug
(Montpellier Centre)

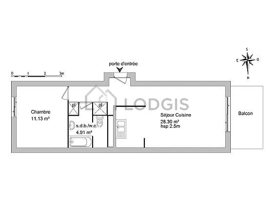
44.3 m² Wohnfläche
2
1 Schlafzimmer
Montpellier Centre

Diese Wohnung bereits ist vermietet


Wohnungs Informationen

  • Erste Etage Mit Aufzug
  • Geschâfte in der Nähe
eine Beschreibung ist möglich mit dem Format Französisch Englisch Spanisch Italienisch Portugiesisch
44.3 m² Wohnfläche - 44.3 m² Grundfläche

Andere Informationen

Besitzer spricht folgende Sprachen :
Französisch Englisch 

Zusammenarbeit mit Lodgis seit 4 Jahren

Die Energiebilanz

Energieprofil Energieprofil

Ausrüstung

  • Klimaanlage
  • Internet Verbindung
  • Waschmaschine
  • Wäschetrockner
  • Geschirrspülmachine
  • Fernseher
  • Terasse
  • Bettwäsche
  • Gefrierschrank
  • Bügeleisen
  • Toaster
  • Wasserkocher
  • Kaffeemaschine
  • Doppel-Verglasung

Services

  • Nicht-Raucher
  • Aufzug
  • Schwimmbad
  • Inklusive Reinigung
  • Tiefgarage
  • Sprechanlage
  • Hausmeister
  • Digicode
  • Keller
  • Wohnungsgemeinschaft
  • Fahrradabstellplatz
  • Parkplatz zusätzlich
×

Diese Wohnung hat noch keinen interaktiven Plan

Klicken Sie auf eine Zimmer, um die Informationen sowie Fotos anzuschauen. .

Wohnzimmer
Küche
Schlafzimmer
Parking
Badezimmer
Umgebung

Zimmer Informationen

Wohnzimmer (28 m²)

Fenster

Küche

Offen

Schlafzimmer (11 m²)

Fenster

Parking

Fenster

Badezimmer (5 m²)

Umgebung

Wohnung zu vermieten AVENUE CHARLES FLAHAULT, 34090

Umgebung

Services in der Nähe :

bubble-speech-1

8 gesprochene
Sprachen

hands-1

personalisierte
Begleitung