Apartment Montpellier Centre -
Apartment Montpellier Centre -
Apartment Montpellier Centre -
Apartment Montpellier Centre -
Apartment Montpellier Centre -
Apartment Montpellier Centre -
No.2M122957

1 bedroom furnished apartment with elevator
(Montpellier Centre)

44.3 m² certified
2
1 Bedroom
Montpellier Centre

This property has already been rented


Property information

  • 1st Floor (FR Standard) with elevator
  • Shops within distance
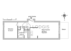
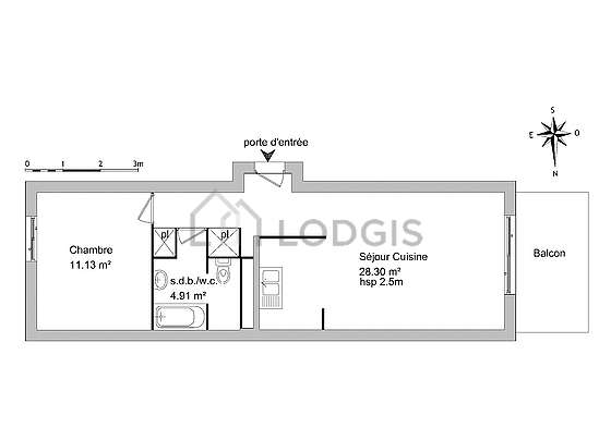
This furnished 44 m² apartment is located on AVENUE CHARLES FLAHAULT, section of. Composed of 2 rooms, including 1 bedroom, this furnished apartment rental can accommodate up to 2 people. This apartment is located on the 1st floor - FR standard (no lift). It is also equipped with all you need just like at home The apartment is accessible by public transportation, and nearby you can find many businesses and services (like a , etc. ).
44.3 m² certified - Floor area 44.3 m²

Practical information

Languages spoken by the landlords :
French English 

With Lodgis for more than 4 years

energy level

Energy performance Energy performance

Features

  • Air conditioning
  • Internet included
  • Washing machine
  • Dryer
  • Dishwasher
  • TV
  • Terrace
  • Linen
  • Freezer
  • Iron
  • Toaster
  • Coffee-maker
  • Double glazing

Services

  • No smoking
  • Elevator
  • Swimming pool
  • weekly housekeeping included
  • garage
  • Intercom
  • Concierge
  • Digicode
  • Basement
  • Perfect for sharing
  • Bike storage
  • Parking lot optional
×

The interactive plan of this apartment is not available yet

Click on a room for more details and pictures..

Living room
Kitchen
Bedroom
Parking
Bathroom
Neighborhood

Room detail

Living room (28 m²)

This apartment consists of a living room its windows with balcony. This living room is furnished and equipped for a comfortable stay.

Kitchen

This apartment consists of kitchen close to the living room and all the necessary equipment for your daily life.

Bedroom (11 m²)

Its windows this room offre provides the necessary equipment for you to serenely rest during your stay.

Parking

This apartment also has a parking.

Bathroom (5 m²)

This apartment is equipped with a bathroom. This bathroom is furnished with all the equipment you need for a comfortable stay. The toilets are separated from the bathroom and located in an independant room.

Neighborhood

Apartment for rent AVENUE CHARLES FLAHAULT, 34090

Neighborhood

Nearby services :

bubble-speech-1

8 languages
spoken

hands-1

Personalised
advice and support