Appartement Orléans -
Appartement Orléans -
n°F331585334

Appartement 1 chambre meublé
(Orléans)

38.8 m² au sol.
4
1 Chambre
Orléans

825 € /mois (Charges comprises - voir le détail voir le détail)

Disponible maintenant
Durée de location : min 1 mois


Informations sur le bien

  • 1er etage sans ascenseur
  • Commerces à proximité
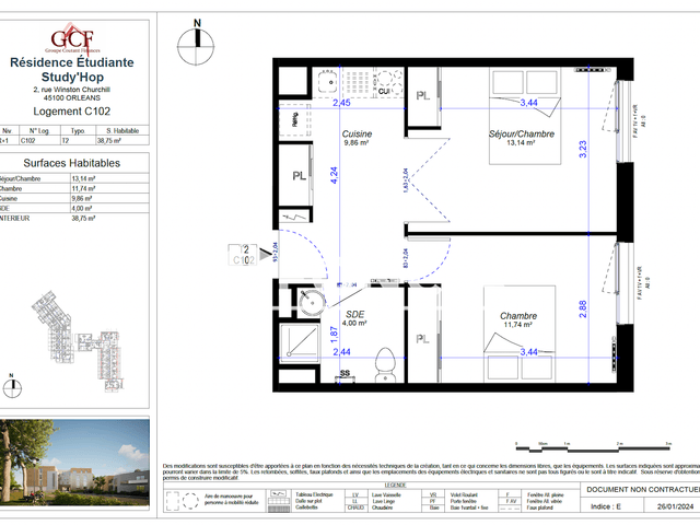
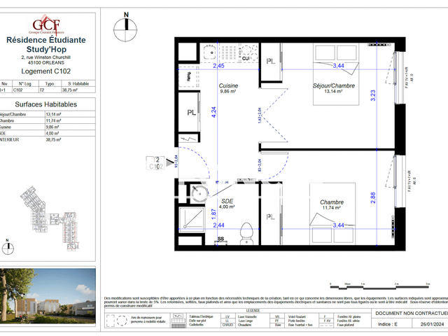
Dans une résidence neuve située dans un environnement calme, proche Hopital et transport pour se rendre à la fac et au centre d'Orleans, très agréable appartement T2 meublé comprenant une entrée, une cuisine aménagée, 2 chambres avec placard, une salle d'eau avec WC. Une place de parking privativeLe chauffage et l'eau sont inclus dans les charges Entre le campus universitaire d?Orléans La Source et le CHU, la résidence est spécialement conçu pour les étudiants, jeunes actifs et pour le personnel hospitalier. Elle dispose d?aménagements communs de qualité : espace coworking, salle de sport, boîte à colis connectée, laverie,? L'appartement est meublé et dispose de tout l'équipement nécessaire pour s'y installer.
38.8 m² au sol.

Détails pratiques

Bilan énergétique

Diagnostic de performance énergétique Diagnostic de performance énergétique

Appartement à louer STUDY'HOP, Orleans 45100

Environnement

Services proches :

×

Disponibilités

Disponible maintenant
Durée de location : min 1 mois
  • Disponible

  • Indisponible

Tarifs

Période Loyer / mois Charges comprises / mois
A partir du  17 mai 2026 825 € Charges comprises 120 €

Les charges pour la location meublée de cet appartement correspondent :
  • aux services fournis par le propriétaire avec le logement : consommation d'eau
  • aux services nécessaires au fonctionnement et à l'entretien de l'immeuble (sauf spécification particulière de votre contrat de location) : l'entretien des parties communes, la taxe d'ordures ménagères, la taxe de balayage, l'éclairage des parties communes
Frais supplémentaires à prévoir pour votre séjour :
  • Dépenses mensuelles d'énergie : Consommation d'électricité
  • Honoraires d'agence : max 12,10 € TTC / m² pour un bail soumis à la loi n° 89-462 du 6 juillet 1989 ou 15% TTC du montant total de la location pour un bail non soumis à la loi n° 89-462 du 6 juillet 1989. i Pour plus de détails, rendez-vous
    sur la page des honoraires Lodgis.
  • Dépôt de garantie : jusqu'à 2 mois de loyer (selon le bail signé)
  • Provision ménage (selon le bail signé)
bubble-speech-1

8 langues
parlées

hands-1

accompagnement
personnalisé