Apartment Orléans -
Apartment Orléans -
No.F331585334

1 bedroom furnished apartment
(Orléans)

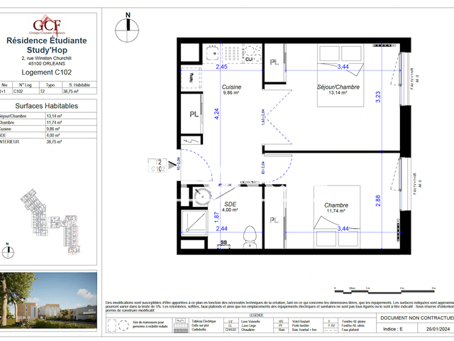
Floor area 38.8 m²
4
1 Bedroom
Orléans

€825 /month (Including charges - see details see details)

Available now
Rental period : min 1 month


Property information

  • 1st Floor (FR Standard) no elevator
  • Shops within distance
A description is available in French
Floor area 38.8 m²

Practical information

energy level

Energy performance Energy performance

Apartment for rent STUDY'HOP, 45100

Neighborhood

Nearby services :

×

Availability

Available now
Rental period : min 1 month
  • Available

  • Unavailable

Price

Period Rent / month Including charges / month
From 02 May 2026 €825 Including charges €120

Charges for furnished rental of this this apartment include:
  • services by the owner with the accomodation: water consumption
  • required services for maintenance of the building (except particular specification of your lease): common areas maintenance, garbage tax, sweeping tax, lighting of common areas
Additional fees for your stay :
  • Monthly energy bills : Electric power
  • Agency fees: max 15 € (including)/m² for a lease subject to French law n° 89-462 of July 6, 1989 or 15% TTC of the total amount of the rent for a lease not subject to French law n° 89-462 of July 6, 1989. i For more details, go to the Lodgis fees page.
  • Garantee deposit: up to 2 months' rent (according to the lease signed)
  • Cleaning fee (according to the lease signed)
bubble-speech-1

8 languages
spoken

hands-1

Personalised
advice and support