N.2L821251

アパルトマン 家具付き 1ベッドルーム Avenue Des Freres Lumieres, Lyon -

法廷基準に沿った面積50.0 m²
2
1 ベッドルーム
Lyon 8°

€995 /月 (管理費込み - 詳細を見る 詳細を見る )

27-04-2026 から空き有り
賃貸期間 : 最短期間 3 ヶ月


物件の詳細

  • 6 階 エレベーターあり
  • 近隣の商店
  • テラス
法廷基準に沿った面積50.0 m² - 床面積50.0 m²

詳細

大家が話す言語 :
フランス語 英語 

ロジスとの取引歴は5年

エネルギー効率

エネルギー効率 エネルギー効率

備品

  • 二重窓
  • テラス
  • テレビ
  • エアコン
  • インターネット
  • 洗濯機
  • 乾燥機
  • ディッシュウォッシャー
  • リネン
  • 冷凍庫
  • アイロン
  • トースター
  • やかん
  • コーヒーメーカー

設備

  • インターフォン
  • 駐車場
  • 禁煙
  • エレベーター
  • プール
  • 掃除有り
  • 管理人
  • デジコード式ドア
  • 地下室
  • ルームメイト
  • 自転車置場
  • パーキングスペース(オプション)
×

Virtual tour

The virtual tour isn't working? Check that your web browser is up-to-date by clicking here

×

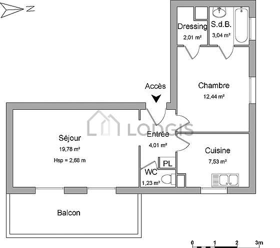
この物件には見取り図が用意されておりません

見取り図上で部屋をクリックすると詳細と写真がご覧いただけます。.

テラス
リビングルーム
キッチン
ベッドルーム
玄関
ドレッシングルーム
バスルーム
トイレ
駐車場
近所の状況

部屋の詳細

テラス

リビングルーム

テレビ - ソファ - ダイニングテーブル - デスク - 4 椅子

窓 - ソファベッド (140 cm)

キッチン

冷蔵庫 - オーブン - bin

セパレート

ベッドルーム

窓 - ダブルベッド

玄関

ドレッシングルーム

バスルーム

バスタブ

トイレ

駐車場

近所の状況

アパルトマン 賃貸物件 Avenue Des Freres Lumieres, 69008

  • D Monplaisir - Lumière

近所の状況

駅 : Monplaisir - Lumière

近隣の様子 :
スーパーマーケット - 市場 - 新聞/マガジン売店 - Fitness center - 映画館 - 博物館 - 肉屋 - パン屋 - 小食料品店 - 薬局 - レストラン

×

空室状況

27-04-2026 から空き有り
賃貸期間 : 最短期間 3 ヶ月
  • 空室

  • 賃貸中

プライス

限目 家賃 / ヶ月 管理費込み / ヶ月
賃貸開始 27 4月 2026 €995 管理費込み €96

This アパルトマン の家具付賃貸の管理費とは:
  • 家主が提供するサービス: 冷水消費料
  • 建物の管理に必要な経費(契約書に別途記載がある場合は除く)、共有部分の管理費、ごみ収集税、共有部分の照明費
賃料の他にお支払いいただくもの :
  • 毎月の光熱費 :
  • 弊社エージェント手数料 : 1989年7月6日付フランス共和国政令第89-462号に基づく賃貸の場合、最大15ユーロ/平米、1989年7月6日付フランス共和国政令第89-462号によらない賃貸の場合、賃貸総額の15%。 i 詳しくは、ロジス料金のページをご覧ください。
  • 入居のための費用(3ユーロ/1平米当たり)
  • 保証金 : 契約書のタイプ により最高2か月分の賃料に 当たる金額
  • 契約書のタイプにより最掃除 費用予備金
bubble-speech-1

8ヶ
国語対応

hands-1

ニーズにあったサ
ービスの提供