Appartamento Port-Marianne -
Appartamento Port-Marianne -
Appartamento Port-Marianne -
Appartamento Port-Marianne -
Appartamento Port-Marianne -
Appartamento Port-Marianne -
Appartamento Port-Marianne -
Appartamento Port-Marianne -
Appartamento Port-Marianne -
Appartamento Port-Marianne -
n°2M222860

Appartamento 1 camera ammobiliato con ascensore
(Port-Marianne)

42.5 m² certificata
2
1 Camera
Port-Marianne

L'appartamento è già stato affittato


Dettagli

  • Livello
  • 4° piano con ascensore
  • Commerci nei dintorni
Questo appartamento di confort di 43 m² si trova in Rue Fructidor, in un quartiere animato e residenziale. Composto di 2 stanze di cui 1 camera, questo appartamento in affitto ammobiliato puo' accogliere fino a 2 persone. Questo appartamento al 4° piano con ascensore, gode di tutto cio' di cui si ha bisogno per sentirsi "come a casa". Perfettamente collegato al resto della città grazie ai trasporti pubblici parigini, vicino al vostro alloggio troverete molti negozi e servizi ().
42.5 m² certificata - ~ 42.5 m²

Informazioni pratiche

Lingue parlate dal proprietario :
Francese Inglese 

Proposto da Lodgis da piu' di 4 anni

bilancio energetico

Diagnostica dell'impianto elettrico Diagnostica dell'impianto elettrico

Comfort

  • Lavatrice
  • Aria condizionata
  • Internet incluso
  • Asciugabiancheria
  • Lavastoviglie
  • Televisione
  • Terrazzo
  • Biancheria
  • Congelatore
  • Ferro da stiro
  • Tostapane
  • Bollitore elettrico
  • Caffettiera
  • Vetri doppi

Servizi

  • Codice di accesso
  • Citofono
  • Non fumatore
  • Ascensore
  • Piscina
  • Pulizie incluse
  • Garage
  • Portinaia
  • Cantina
  • Ideale per delle coabitazione
  • Locale per biciclette
  • Posto auto in opzione
×

Questo appartamento non dispone ancora di una mappa interattiva

Clicca su una camera per vedere i dettagli e le foto..

Soggiorno
Cucina
Camera
Entrata
Parking
Sala da bagno
WC
Vicinanze

Dettagli dell'appartamento

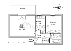
Soggiorno (19 m²)

Questo appartamento é composto di un attraente salone delle finestras con balcon. Questo salone calmo é ammobiliato e equipaggiato per rendere il tuo soggiorno piacevole.

Cucina (5 m²)

Questo appartamento dispone di una cucina e tutto l'equipaggiamento necessario per la vita quotidiana.

Camera (10 m²)

Delle finestras questa camera offre l'equipaggiamento necessario per riposarti durante il tuo soggiorno.

Entrata (4 m²)

Questo appartamento dispone ugualmentea entrata.

Parking

Questo appartamento dispone ugualmentea parking.

Sala da bagno (3 m²)

Questo appartamento é equipaggiato di un bagno. Questo bagno é dotato di tutto il necessario per il tuo benessere quotidiano : vasca da bagno. Il WC é separato dal bagno ed é situato in un locale indipendente.

WC (1 m²)

Questo appartamento ha il WC indipendente

Vicinanze

Appartamento in affitto Rue Fructidor, 34000

Vicinanze

Livello : animato

Livello : residenziale

Servizi di prossimità :

Testimonianze (1)

4/5
Molto bene
4/5

bubble-speech-1

8 lingue
parlate

hands-1

Un accompagnamento
personalizzato