Wohnung Port-Marianne -
Wohnung Port-Marianne -
Wohnung Port-Marianne -
Wohnung Port-Marianne -
Wohnung Port-Marianne -
Wohnung Port-Marianne -
Wohnung Port-Marianne -
Wohnung Port-Marianne -
Wohnung Port-Marianne -
Wohnung Port-Marianne -
No2M222860

Möblierte Wohnung 1 Schlafzimmer mit aufzug
(Port-Marianne)

42.5 m² Wohnfläche
2
1 Schlafzimmer
Port-Marianne

Diese Wohnung bereits ist vermietet


Wohnungs Informationen

  • Stand
  • 4. Etage Mit Aufzug
  • Geschâfte in der Nähe
eine Beschreibung ist möglich mit dem Format Französisch Englisch Spanisch Italienisch Portugiesisch
42.5 m² Wohnfläche - 42.5 m² Grundfläche

Andere Informationen

Besitzer spricht folgende Sprachen :
Französisch Englisch 

Zusammenarbeit mit Lodgis seit 4 Jahren

Die Energiebilanz

Energieprofil Energieprofil

Ausrüstung

  • Waschmaschine
  • Klimaanlage
  • Internet Verbindung
  • Wäschetrockner
  • Geschirrspülmachine
  • Fernseher
  • Terasse
  • Bettwäsche
  • Gefrierschrank
  • Bügeleisen
  • Toaster
  • Wasserkocher
  • Kaffeemaschine
  • Doppel-Verglasung

Services

  • Digicode
  • Sprechanlage
  • Nicht-Raucher
  • Aufzug
  • Schwimmbad
  • Inklusive Reinigung
  • Tiefgarage
  • Hausmeister
  • Keller
  • Wohnungsgemeinschaft
  • Fahrradabstellplatz
  • Parkplatz zusätzlich
×

Diese Wohnung hat noch keinen interaktiven Plan

Klicken Sie auf eine Zimmer, um die Informationen sowie Fotos anzuschauen. .

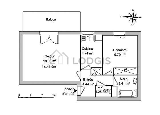
Wohnzimmer
Küche
Schlafzimmer
Eintritt
Parking
Badezimmer
WC
Umgebung

Zimmer Informationen

Wohnzimmer (19 m²)

Fenster

Küche (5 m²)

getrennt

Schlafzimmer (10 m²)

Fenster

Eintritt (4 m²)

Fenster

Parking

Fenster

Badezimmer (3 m²)

Badewanne

WC (1 m²)

Umgebung

Wohnung zu vermieten Rue Fructidor, 34000

Umgebung

Stand : belebt

Stand : Wohn

Services in der Nähe :

Bewertungen (1)

4/5
Sehr gut
4/5

bubble-speech-1

8 gesprochene
Sprachen

hands-1

personalisierte
Begleitung