Apartment Port-Marianne -
Apartment Port-Marianne -
Apartment Port-Marianne -
Apartment Port-Marianne -
Apartment Port-Marianne -
Apartment Port-Marianne -
Apartment Port-Marianne -
Apartment Port-Marianne -
Apartment Port-Marianne -
Apartment Port-Marianne -
No.2M222860

1 bedroom furnished apartment with elevator
(Port-Marianne)

42.5 m² certified
2
1 Bedroom
Port-Marianne

This property has already been rented


Property information

  • Rating
  • 4th floor (FR Standard) with elevator
  • Shops within distance
This comfortable 43 m² apartment is located on Rue Fructidor, in a animated and residential section of. Composed of 2 rooms, including 1 bedroom, this furnished apartment rental can accommodate up to 2 people. This apartment is located on the 4th floor - FR standard (elevator available). It is also equipped with all you need to feel like a local The apartment is accessible by public transportation, and nearby you can find many businesses and services (like a , etc. ).
42.5 m² certified - Floor area 42.5 m²

Practical information

Languages spoken by the landlords :
French English 

With Lodgis for more than 4 years

energy level

Energy performance Energy performance

Features

  • Washing machine
  • Air conditioning
  • Internet included
  • Dryer
  • Dishwasher
  • TV
  • Terrace
  • Linen
  • Freezer
  • Iron
  • Toaster
  • Coffee-maker
  • Double glazing

Services

  • Digicode
  • Intercom
  • No smoking
  • Elevator
  • Swimming pool
  • weekly housekeeping included
  • garage
  • Concierge
  • Basement
  • Perfect for sharing
  • Bike storage
  • Parking lot optional
×

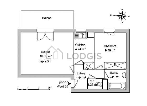
The interactive plan of this apartment is not available yet

Click on a room for more details and pictures..

Living room
Kitchen
Bedroom
Entrance
Parking
Bathroom
Toilet
Neighborhood

Room detail

Living room (19 m²)

This apartment consists of a attractive living room its windows with balcony. This quiet living room is furnished and equipped for a comfortable stay.

Kitchen (5 m²)

This apartment consists of kitchen and all the necessary equipment for your daily life.

Bedroom (10 m²)

Its windows this room offre provides the necessary equipment for you to serenely rest during your stay.

Entrance (4 m²)

This apartment also has a entrance.

Parking

This apartment also has a parking.

Bathroom (3 m²)

This apartment is equipped with a bathroom. This bathroom is furnished with all the equipment you need for a comfortable stay: bath tub. The toilets are separated from the bathroom and located in an independant room.

Toilet (1 m²)

This apartment has independant toilets.

Neighborhood

Apartment for rent Rue Fructidor, 34000

Neighborhood

Neighborhood's ambiance : animated

Neighborhood's ambiance : residential

Nearby services :

reviews (1)

4/5
Very good
4/5

bubble-speech-1

8 languages
spoken

hands-1

Personalised
advice and support