Apartamento Port-Marianne -
Apartamento Port-Marianne -
Apartamento Port-Marianne -
Apartamento Port-Marianne -
Apartamento Port-Marianne -
Apartamento Port-Marianne -
Apartamento Port-Marianne -
Apartamento Port-Marianne -
Apartamento Port-Marianne -
Apartamento Port-Marianne -
No.2M222860

Apartamento 1 quarto mobiliado com elevador
(Port-Marianne)

42.5 m² certificados
2
1 Quarto
Port-Marianne

Este apartamento já foi alugado


Informações sobre o imovel

  • Qualidade
  • 4quarto andar com elevador
  • Comercio proximos
Este apartamento confortável de 43 m² se situa em Rue Fructidor, num bairro animado e residencial. Composto por 2 peças com 1 quarto, este apartamento em renda mobilada pode acolher até 2 pessoas. Este apartamento no 4e andar com elevador, beneficia de equipamento necessário para se sentir «como em casa». Perfeitamente servido por transporte público, você encontrará perto do apartamento mobilado numerosos comércios e serviços ().
42.5 m² certificados - tamanho aproximado 42.5 m²

Detalhes praticos

Línguas faladas pelos proprietários :
Francês Inglês 

Com a Lodgis ha mais de 4 anos

bilão energético

Diagnostic de performance énergétique Diagnostic de performance énergétique

Equipamentos

  • Máquina de lavar
  • Ar condicionado
  • Internet tudo incluído
  • Máquina de secar
  • Màquina de lavar a loiça
  • Televisaõ
  • Terraça
  • roupa de cama
  • Congelador
  • Ferro
  • Torradeira
  • Chaleira
  • Máquina de café
  • Janelas Duplas

Serviços

  • Código de acesso
  • Interfone
  • Não fumantes
  • Elevador
  • Piscina
  • Limpeza incluída
  • Garagem
  • Porteiro
  • Cave
  • Ideal para colocação
  • Local para as bicicletas
  • Lugar de estacionamento opcional
×

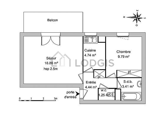
Esse apartamento não dispõe de um plano interativo pelo momento

Clique em um dos cômodos para obter mais detalhes e ver as fotos..

Salaõ
Cozinha
Quarto
Entrada
Parking
Casa de banho
Sanitários
Ambiente

Detalhes do apartamento

Salaõ (19 m²)

Este apartamento é composto de um charmoso salão janelas com balcão. Este salão calmo mobiliado et equipado para uma agradável estância.

Cozinha (5 m²)

Este apartamento tem uma cozinha e todo o equipamento pela sua vida quotidiana.

Quarto (10 m²)

Janelas este quarto oferece o equipamento necessário para descansar durante sua estância.

Entrada (4 m²)

Este apartamento dispõe tambéma entrada.

Parking

Este apartamento dispõe tambéma parking.

Casa de banho (3 m²)

Este apartamento é equipado de uma casa de banho. Esta sala de água dispõe do necessário pelo seu bem estar na sua vida quotidiana : banheira. Os WC são separados da casa de banho e situados em uma peça independente.

Sanitários (1 m²)

Este apartamento dispõe de WC independente.

Ambiente

Apartamento para alugar Rue Fructidor, 34000

Ambiente

Qualidade : animado

Qualidade : residential

Serviços proximos :

opiniões (1)

4/5
Muito Bom
4/5

bubble-speech-1

8 linguas
faladas

hands-1

Um acompanhamento
personalizado