Apartamento Lyon 2° -
Apartamento Lyon 2° -
Apartamento Lyon 2° -
Apartamento Lyon 2° -
Apartamento Lyon 2° -
Apartamento Lyon 2° -
Apartamento Lyon 2° -
Apartamento Lyon 2° -
Apartamento Lyon 2° -
Apartamento Lyon 2° -
n°1L221413

Estudio amueblado
(Lyon 2°)

20.2 m² certificados
1
estudio
Lyon 2°

Este apartamento ha sido alquilado


Información sobre el apartamento

  • 4° planta Sin ascensor
  • Negocios próximos
Este apartamento amueblado de 20 m² está situado en Rue D'auvergne. Este bonito estudio en alquiler amueblado puede alojar hasta 1 persona. Este apartamento, esta en un 4° sin ascensor, tiene todo lo necesario para disfrutar de una auténtica estancia. Perfectamente conectado con los medios de transporte, encontrará cerca de su vivienda amueblada numerosos comercios y servicios ().
20.2 m² certificados - aproximadamente 20.2 m²

Detalles

Idiomas hablados por los propietarios :
Francés Inglés 

En Lodgis desde más de 5 años

balance energético

Diagnostico de performancia energetica Diagnostico de performancia energetica

Prestaciones

  • ventana doble cristal
  • Aire Acondicionado
  • Internet todo incluído
  • Lavadora
  • Secadora
  • Lavavajilla
  • Televisor
  • Terraza
  • ropa de cama
  • Congelador
  • Plancha
  • Tostador
  • Hervidor
  • Cafetera

Servicios

  • Intercomunicador
  • No Fumador
  • ascensor
  • Piscina
  • Limpieza incluida
  • Cochera
  • Portero
  • Código de acceso
  • Bodega
  • Perfecto para compartir
  • local para bicicletas
  • Plaza de parking opcional
×

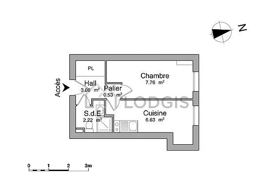
Este apartamento no dispone todavía de un plano interactivo

Haga un click sobre una pieza para ver el detalle y las fotos.

Salón
Cocina
Cuarto de baño
Alrededores

Detalle de las piezas

Salón

Este apartamento está formado por un salón ventanas doble acristalamiento. Este salón está amueblado y equipado para que su estancia sea agradable : 1 cama.

Cocina

Este apartamento posee una cocinay todo el equipamiento necesario para su vida diaria : placas eléctricas, refrigerador, mesa, armario empotrado, 1 silla(s).

Cuarto de baño

Este apartamento tiene una sala de baño. Este baño tiene todo lo necesario para su bienestar diario : ducha, sink. El WC está integrado en la sala del baño.

Alrededores

Apartamento en alquiler Rue D'auvergne, 69002

  • Bellecour

Alrededores

Estación : Bellecour

Servicios de proximidad :

bubble-speech-1

8 idiomas
hablados

hands-1

Acompañamiento
personalizado