N.1L221413

アパルトマン 家具付き ワンルーム Rue D'auvergne, Lyon -

法廷基準に沿った面積20.2 m²
1
ワンルーム
Lyon 2°

このアパートは、すでにレンタルされています


物件の詳細

  • 4 階 エレベーター無
  • 近隣の商店
法廷基準に沿った面積20.2 m² - 床面積20.2 m²

詳細

大家が話す言語 :
フランス語 英語 

ロジスとの取引歴は4年

エネルギー効率

エネルギー効率 エネルギー効率

備品

  • 二重窓
  • エアコン
  • 電話線
  • インターネット
  • ケーブル
  • サテライト
  • 洗濯機
  • 乾燥機
  • ディッシュウォッシャー
  • テレビ
  • テラス
  • リネン
  • 冷凍庫
  • アイロン
  • トースター
  • やかん
  • コーヒーメーカー

設備

  • インターフォン
  • 禁煙
  • エレベーター
  • プール
  • 掃除有り
  • 駐車場
  • 管理人
  • デジコード式ドア
  • 地下室
  • ルームメイト
  • 自転車置場
  • パーキングスペース(オプション)
×

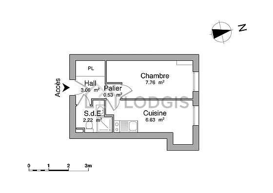
この物件には見取り図が用意されておりません

見取り図上で部屋をクリックすると詳細と写真がご覧いただけます。.

リビングルーム
キッチン
バスルーム
近所の状況

部屋の詳細

リビングルーム

窓 - シングルベッド

キッチン

料理加熱台 - 冷蔵庫 - ダイニングテーブル - クローゼット - 1 椅子

セパレート

バスルーム

シャワー - Sink

近所の状況

アパルトマン 賃貸物件 Rue D'auvergne, 69002

近所の状況

近隣の様子 :

bubble-speech-1

8ヶ
国語対応

hands-1

ニーズにあったサ
ービスの提供