Appartamento Lyon 2° -
Appartamento Lyon 2° -
Appartamento Lyon 2° -
Appartamento Lyon 2° -
Appartamento Lyon 2° -
Appartamento Lyon 2° -
Appartamento Lyon 2° -
Appartamento Lyon 2° -
Appartamento Lyon 2° -
Appartamento Lyon 2° -
n°1L221413

Monolocale ammobiliato
(Lyon 2°)

20.2 m² certificata
1
monolocale
Lyon 2°

L'appartamento è già stato affittato


Dettagli

  • 4° piano senza ascensore
  • Commerci nei dintorni
Questo appartamento ammobiliato di 20 m² si trova in Rue D'auvergne. Questo atipico monolocale in affitto ammobiliato puo' accogliere fino a 1 persona. Questo appartamento al 4° piano senza ascensore, gode di tutto cio' di cui si ha bisogno per un soggiorno in tutta tranquillità. Perfettamente collegato al resto della città grazie ai trasporti pubblici parigini, vicino al vostro alloggio troverete molti negozi e servizi ().
20.2 m² certificata - ~ 20.2 m²

Informazioni pratiche

Lingue parlate dal proprietario :
Francese Inglese 

Proposto da Lodgis da piu' di 5 anni

bilancio energetico

Diagnostica dell'impianto elettrico Diagnostica dell'impianto elettrico

Comfort

  • Vetri doppi
  • Aria condizionata
  • Internet incluso
  • Lavatrice
  • Asciugabiancheria
  • Lavastoviglie
  • Televisione
  • Terrazzo
  • Biancheria
  • Congelatore
  • Ferro da stiro
  • Tostapane
  • Bollitore elettrico
  • Caffettiera

Servizi

  • Citofono
  • Non fumatore
  • Ascensore
  • Piscina
  • Pulizie incluse
  • Garage
  • Portinaia
  • Codice di accesso
  • Cantina
  • Ideale per delle coabitazione
  • Locale per biciclette
  • Posto auto in opzione
×

Questo appartamento non dispone ancora di una mappa interattiva

Clicca su una camera per vedere i dettagli e le foto..

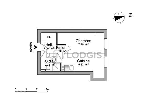
Soggiorno
Cucina
Sala da bagno
Vicinanze

Dettagli dell'appartamento

Soggiorno

Questo appartamento é composto di un salone delle finestras anti-rumore. Questo salone é ammobiliato e equipaggiato per rendere il tuo soggiorno piacevole : 1 letto.

Cucina

Questo appartamento dispone di una cucina e tutto l'equipaggiamento essenziale per la vita quotidiana : piani di cottura, frigorifero, tavola da pranzo, armadio, 1 sedia (e).

Sala da bagno

Questo appartamento é equipaggiato di un bagno. Questo bagno é dotato di tutto il necessario per il tuo benessere quotidiano : doccia, sink. Il WC é integrato nel bagno

Vicinanze

Appartamento in affitto Rue D'auvergne, 69002

  • Bellecour

Vicinanze

Stazione : Bellecour

Servizi di prossimità :

bubble-speech-1

8 lingue
parlate

hands-1

Un accompagnamento
personalizzato