Apartamento Lyon 2° -
Apartamento Lyon 2° -
Apartamento Lyon 2° -
Apartamento Lyon 2° -
Apartamento Lyon 2° -
Apartamento Lyon 2° -
Apartamento Lyon 2° -
Apartamento Lyon 2° -
Apartamento Lyon 2° -
Apartamento Lyon 2° -
No.1L221413

Studio mobiliado
(Lyon 2°)

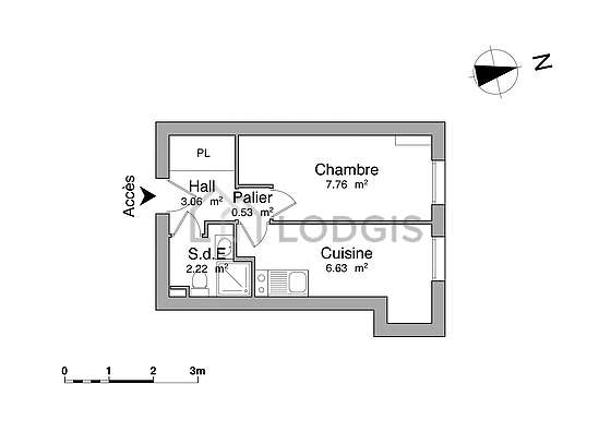
20.2 m² certificados
1
studio
Lyon 2°

Este apartamento já foi alugado


Informações sobre o imovel

  • 4quarto andar sem elevador
  • Comercio proximos
Este apartamento mobilado de 20 m² se situa em Rue D'auvergne. Este éstudio de charme em renda mobilada pode acolher até 1 pessoa. Este apartamento no 4e andar sem elevador, beneficia de equipamento necessário para uma estadia em exitosa. Perfeitamente servido por transporte público, você encontrará perto do apartamento mobilado numerosos comércios e serviços ().
20.2 m² certificados - tamanho aproximado 20.2 m²

Detalhes praticos

Línguas faladas pelos proprietários :
Francês Inglês 

Com a Lodgis ha mais de 5 anos

bilão energético

Diagnostic de performance énergétique Diagnostic de performance énergétique

Equipamentos

  • Janelas Duplas
  • Ar condicionado
  • Internet tudo incluído
  • Máquina de lavar
  • Máquina de secar
  • Màquina de lavar a loiça
  • Televisaõ
  • Terraça
  • roupa de cama
  • Congelador
  • Ferro
  • Torradeira
  • Chaleira
  • Máquina de café

Serviços

  • Interfone
  • Não fumantes
  • Elevador
  • Piscina
  • Limpeza incluída
  • Garagem
  • Porteiro
  • Código de acesso
  • Cave
  • Ideal para colocação
  • Local para as bicicletas
  • Lugar de estacionamento opcional
×

Esse apartamento não dispõe de um plano interativo pelo momento

Clique em um dos cômodos para obter mais detalhes e ver as fotos..

Salaõ
Cozinha
Casa de banho
Ambiente

Detalhes do apartamento

Salaõ

Este apartamento é composto de um salão janelas vitros duplos. Este salão mobiliado et equipado para uma agradável estância : 1 cama.

Cozinha

Este apartamento tem uma cozinha e todo o equipamento pela sua vida quotidiana : fogaõ, frigorífico, mesa de jantar, armário, 1 cadeira(s).

Casa de banho

Este apartamento é equipado de uma casa de banho. Esta sala de água dispõe do necessário pelo seu bem estar na sua vida quotidiana : ducheiro separado, sink. Os WC são integrados na casa de banho.

Ambiente

Apartamento para alugar Rue D'auvergne, 69002

  • Bellecour

Ambiente

Estação : Bellecour

Serviços proximos :

bubble-speech-1

8 linguas
faladas

hands-1

Um acompanhamento
personalizado