Wohnung Lyon 2° -
Wohnung Lyon 2° -
Wohnung Lyon 2° -
Wohnung Lyon 2° -
Wohnung Lyon 2° -
Wohnung Lyon 2° -
Wohnung Lyon 2° -
Wohnung Lyon 2° -
Wohnung Lyon 2° -
Wohnung Lyon 2° -
No1L221413

Möblierte Studio
(Lyon 2°)

20.2 m² Wohnfläche
1
Studio
Lyon 2°

Diese Wohnung bereits ist vermietet


Wohnungs Informationen

  • 4. Etage Ohne Aufzug
  • Geschâfte in der Nähe
eine Beschreibung ist möglich mit dem Format Französisch Englisch Spanisch Italienisch Portugiesisch
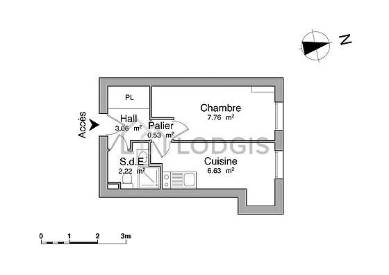
20.2 m² Wohnfläche - 20.2 m² Grundfläche

Andere Informationen

Besitzer spricht folgende Sprachen :
Französisch Englisch 

Zusammenarbeit mit Lodgis seit 5 Jahren

Die Energiebilanz

Energieprofil Energieprofil

Ausrüstung

  • Doppel-Verglasung
  • Klimaanlage
  • Internet Verbindung
  • Waschmaschine
  • Wäschetrockner
  • Geschirrspülmachine
  • Fernseher
  • Terasse
  • Bettwäsche
  • Gefrierschrank
  • Bügeleisen
  • Toaster
  • Wasserkocher
  • Kaffeemaschine

Services

  • Sprechanlage
  • Nicht-Raucher
  • Aufzug
  • Schwimmbad
  • Inklusive Reinigung
  • Tiefgarage
  • Hausmeister
  • Digicode
  • Keller
  • Wohnungsgemeinschaft
  • Fahrradabstellplatz
  • Parkplatz zusätzlich
×

Diese Wohnung hat noch keinen interaktiven Plan

Klicken Sie auf eine Zimmer, um die Informationen sowie Fotos anzuschauen. .

Wohnzimmer
Küche
Badezimmer
Umgebung

Zimmer Informationen

Wohnzimmer

Fenster - Bettbreite 90

Küche

Kochplatte - Kühlschrank - Esstisch - Wandschrank - Sitze

getrennt

Badezimmer

Getrenntes Badezimmer - Sink

Umgebung

Wohnung zu vermieten Rue D'auvergne, 69002

  • Bellecour

Umgebung

U-Bahnstadtion : Bellecour

Services in der Nähe :

bubble-speech-1

8 gesprochene
Sprachen

hands-1

personalisierte
Begleitung