Apartamento Centre ville -
Apartamento Centre ville -
Apartamento Centre ville -
Apartamento Centre ville -
Apartamento Centre ville -
Apartamento Centre ville -
Apartamento Centre ville -
Apartamento Centre ville -
Apartamento Centre ville -
Apartamento Centre ville -
Apartamento Centre ville -
Apartamento Centre ville -
Apartamento Centre ville -
Apartamento Centre ville -
n°1AA23221

Estudio amueblado con terraza
(Centre ville)

27.4 m² certificados
1
estudio
Centre ville

Este apartamento ha sido alquilado


Información sobre el apartamento

  • 3° planta Sin ascensor
  • Negocios próximos
  • Terraza
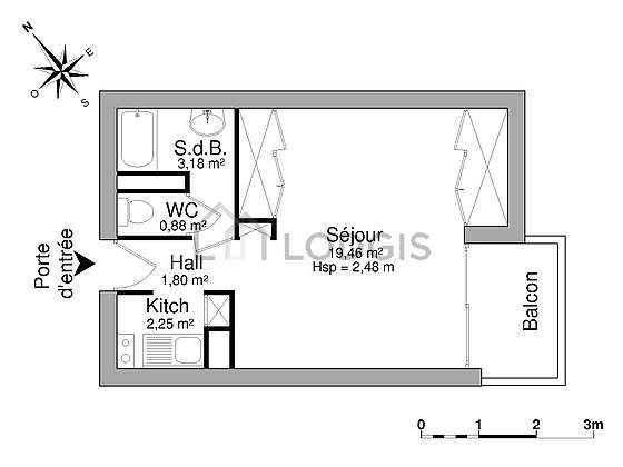
Este apartamento amueblado de 27 m² está situado en Rue De Cuques, en un barrio residencial. Este bonito estudio en alquiler amueblado puede alojar hasta 1 persona. Este apartamento, esta en un 3° sin ascensor, tiene una terraza y todo lo necesario para una estancia tranquila. Perfectamente conectado con los medios de transporte, encontrará cerca de su vivienda amueblada numerosos comercios y servicios ().
27.4 m² certificados - aproximadamente 27.4 m²

Detalles

Idiomas hablados por los propietarios :
Francés Inglés 

En Lodgis desde más de 4 años

balance energético

Logement à consommation énergétique excessive

Prestaciones

  • Terraza
  • Aire Acondicionado
  • Internet todo incluído
  • Lavadora
  • Secadora
  • Lavavajilla
  • Televisor
  • ropa de cama
  • Congelador
  • Plancha
  • Tostador
  • Hervidor
  • Cafetera
  • ventana doble cristal

Servicios

  • Intercomunicador
  • No Fumador
  • ascensor
  • Piscina
  • Limpieza incluida
  • Cochera
  • Portero
  • Código de acceso
  • Bodega
  • Perfecto para compartir
  • local para bicicletas
  • Plaza de parking opcional
×

Este apartamento no dispone todavía de un plano interactivo

Haga un click sobre una pieza para ver el detalle y las fotos.

Terraza
Salón
Cuarto de baño

Detalle de las piezas

Terraza

, la terraza de este apartamento os maravillará. Este espacio exterior será un verdadero 'plus' para su estancia en París, sobre todo los días soleados.

Salón

Este apartamento está formado por un salón ventanas. Este salón está amueblado y equipado para que su estancia sea agradable : 1 sofá cama.

Cuarto de baño

Este apartamento tiene una sala de baño. Este baño tiene todo lo necesario para su bienestar diario. El WC está separado de la sala del baño y ubicado en un espacio independiente.

Apartamento en alquiler Rue De Cuques, Aix En Provence 13100

Alrededores

Nivel : residencial

Servicios de proximidad :

bubble-speech-1

8 idiomas
hablados

hands-1

Acompañamiento
personalizado