Квартира Centre ville -
Квартира Centre ville -
Квартира Centre ville -
Квартира Centre ville -
Квартира Centre ville -
Квартира Centre ville -
Квартира Centre ville -
Квартира Centre ville -
Квартира Centre ville -
Квартира Centre ville -
Квартира Centre ville -
Квартира Centre ville -
Квартира Centre ville -
Квартира Centre ville -
№1AA23221

Квартира меблированное студия Rue De Cuques, Aix En Provence -

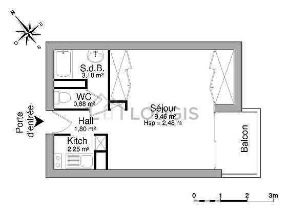
27.4 m² сертифицированно
1
однокомнатная
Centre ville


Информация про квартиру

  • 4ый этаж без лифта
  • Ближайшие магазины
  • Терраса
27.4 m² сертифицированно - 27.4 m² чистая площадь

Детали

разговорные языки владельцев :
Французкий Английский 

Предлагается в аренду агентством Lodgis 4 лет

Энергетическая характеристика

Logement à consommation énergétique excessive

Сервис в квартире

  • Терраса
  • Кондиционированный воздух
  • Интернет
  • Стиральная машина
  • Сушилка для белья
  • Посудамоечная машина
  • Телевизор
  • Постельное бельё
  • Морозилка
  • Гладельный утюг
  • Тостер
  • Электрический чайник
  • Кофейник
  • Двухслойные стёкла

Сервис

  • Домофон
  • Некурящий
  • Лифт
  • Бассейн
  • С уборкой
  • Гараж
  • Консьерж
  • Digicode
  • Подвал
  • для соседа по комнате
  • Велосипедное помещение
  • парковка как дополнительная услуга
×

Данная квартира пока не располагает интерактивном планом

Подведите курсор на комнату, что бы увидеть детальное описание и фотографии..

Терраса
Гостиная
Ванная

Описание комнат

Терраса

Гостиная

Окно - Разкладуйщийся диван (140 cm)

Ванная

Квартира в аренду Rue De Cuques, Aix En Provence 13100

Окрестности

Уровень комфорта : Жилой

Услуги поблизости :

bubble-speech-1

разговариваем на
8 языках

hands-1

персональный
подход