Appartamento Centre ville -
Appartamento Centre ville -
Appartamento Centre ville -
Appartamento Centre ville -
Appartamento Centre ville -
Appartamento Centre ville -
Appartamento Centre ville -
Appartamento Centre ville -
Appartamento Centre ville -
Appartamento Centre ville -
Appartamento Centre ville -
Appartamento Centre ville -
Appartamento Centre ville -
Appartamento Centre ville -
n°1AA23221

Monolocale ammobiliato con terrazzo
(Centre ville)

27.4 m² certificata
1
monolocale
Centre ville

L'appartamento è già stato affittato


Dettagli

  • 3° piano senza ascensore
  • Commerci nei dintorni
  • Terrazzo
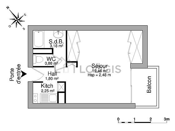
Questo appartamento ammobiliato di 27 m² si trova in Rue De Cuques, in un quartiere residenziale. Questo atipico monolocale in affitto ammobiliato puo' accogliere fino a 1 persona. Questo appartamento al 3° piano senza ascensore, gode di una terrazza e di tutto cio' di cui si ha bisogno per sentirsi "come a casa". Perfettamente collegato al resto della città grazie ai trasporti pubblici parigini, vicino al vostro alloggio troverete molti negozi e servizi ().
27.4 m² certificata - ~ 27.4 m²

Informazioni pratiche

Lingue parlate dal proprietario :
Francese Inglese 

Proposto da Lodgis da piu' di 4 anni

bilancio energetico

Logement à consommation énergétique excessive

Comfort

  • Terrazzo
  • Aria condizionata
  • Internet incluso
  • Lavatrice
  • Asciugabiancheria
  • Lavastoviglie
  • Televisione
  • Biancheria
  • Congelatore
  • Ferro da stiro
  • Tostapane
  • Bollitore elettrico
  • Caffettiera
  • Vetri doppi

Servizi

  • Citofono
  • Non fumatore
  • Ascensore
  • Piscina
  • Pulizie incluse
  • Garage
  • Portinaia
  • Codice di accesso
  • Cantina
  • Ideale per delle coabitazione
  • Locale per biciclette
  • Posto auto in opzione
×

Questo appartamento non dispone ancora di una mappa interattiva

Clicca su una camera per vedere i dettagli e le foto..

Terrazzo
Soggiorno
Sala da bagno

Dettagli dell'appartamento

Terrazzo

La terrazza di questo appartamento ti incanterà. Questo spazio esterno ti permetterà di approfittare pienamente del tuo soggiorno a Parigi, soprattutto durante le belle giornate.

Soggiorno

Questo appartamento é composto di un salone delle finestras. Questo salone é ammobiliato e equipaggiato per rendere il tuo soggiorno piacevole : 1 divano letto.

Sala da bagno

Questo appartamento é equipaggiato di un bagno. Questo bagno é dotato di tutto il necessario per il tuo benessere quotidiano. Il WC é separato dal bagno ed é situato in un locale indipendente.

Appartamento in affitto Rue De Cuques, Aix En Provence 13100

Vicinanze

Livello : residenziale

Servizi di prossimità :

bubble-speech-1

8 lingue
parlate

hands-1

Un accompagnamento
personalizzato