Apartamento Centre ville -
Apartamento Centre ville -
Apartamento Centre ville -
Apartamento Centre ville -
Apartamento Centre ville -
Apartamento Centre ville -
Apartamento Centre ville -
Apartamento Centre ville -
Apartamento Centre ville -
Apartamento Centre ville -
Apartamento Centre ville -
Apartamento Centre ville -
Apartamento Centre ville -
Apartamento Centre ville -
No.1AA23221

Studio mobiliado com terraça
(Centre ville)

27.4 m² certificados
1
studio
Centre ville

Este apartamento já foi alugado


Informações sobre o imovel

  • 3terceiro andar sem elevador
  • Comercio proximos
  • Terraça
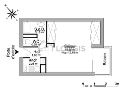
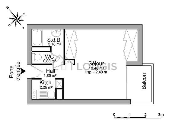
Este apartamento mobilado de 27 m² se situa em Rue De Cuques, num bairro residencial. Este éstudio de charme em renda mobilada pode acolher até 1 pessoa. Este apartamento no 3e andar sem elevador, beneficia de um terraço i de equipamento necessário para uma estadia com toda a tranquilidade. Perfeitamente servido por transporte público, você encontrará perto do apartamento mobilado numerosos comércios e serviços ().
27.4 m² certificados - tamanho aproximado 27.4 m²

Detalhes praticos

Línguas faladas pelos proprietários :
Francês Inglês 

Com a Lodgis ha mais de 4 anos

bilão energético

Logement à consommation énergétique excessive

Equipamentos

  • Terraça
  • Ar condicionado
  • Internet tudo incluído
  • Máquina de lavar
  • Máquina de secar
  • Màquina de lavar a loiça
  • Televisaõ
  • roupa de cama
  • Congelador
  • Ferro
  • Torradeira
  • Chaleira
  • Máquina de café
  • Janelas Duplas

Serviços

  • Interfone
  • Não fumantes
  • Elevador
  • Piscina
  • Limpeza incluída
  • Garagem
  • Porteiro
  • Código de acesso
  • Cave
  • Ideal para colocação
  • Local para as bicicletas
  • Lugar de estacionamento opcional
×

Esse apartamento não dispõe de um plano interativo pelo momento

Clique em um dos cômodos para obter mais detalhes e ver as fotos..

Terraça
Salaõ
Casa de banho

Detalhes do apartamento

Terraça

O terraço de este apartamento vai lhe encantá-lo. Este espaço exterior sera uma verdadeira vantagem para sua estância em Paris, sobretudo os dias de sol.

Salaõ

Este apartamento é composto de um salão janelas. Este salão mobiliado et equipado para uma agradável estância : 1 sofá-cama.

Casa de banho

Este apartamento é equipado de uma casa de banho. Esta sala de água dispõe do necessário pelo seu bem estar na sua vida quotidiana. Os WC são separados da casa de banho e situados em uma peça independente.

Apartamento para alugar Rue De Cuques, Aix En Provence 13100

Ambiente

Qualidade : residential

Serviços proximos :

bubble-speech-1

8 linguas
faladas

hands-1

Um acompanhamento
personalizado