Appartement Centre ville -
Appartement Centre ville -
Appartement Centre ville -
Appartement Centre ville -
Appartement Centre ville -
Appartement Centre ville -
Appartement Centre ville -
Appartement Centre ville -
Appartement Centre ville -
Appartement Centre ville -
Appartement Centre ville -
Appartement Centre ville -
Appartement Centre ville -
Appartement Centre ville -
n°1AA23221

Studio meublé avec terrasse
(Centre ville)

27.4 m² certifiée
1
studio
Centre ville


Informations sur le bien

  • 3ème étage sans ascenseur
  • Commerces à proximité
  • Terrasse
Cet appartement meublé de 27 m² est situé Rue De Cuques, dans un quartier résidentiel. Ce charmant studio en location meublée peut accueillir jusqu'à 1 personne. Cet appartement au 3e étage sans ascenseur, bénéficie d'une terrasse et de l'équipement nécessaire pour vous sentir "comme à la maison". Parfaitement desservi par les transports en commun, vous trouverez à proximité de nombreux commerces et services ().
27.4 m² certifiée - 27.4 m² au sol.

Détails pratiques

Langues parlées par les propriétaires :
Français Anglais 

Chez Lodgis depuis plus de 4 ans

Bilan énergétique

Logement à consommation énergétique excessive

Equipements

  • Terrasse
  • Air conditionné
  • Internet tout compris
  • Lave linge
  • Sèche linge
  • Lave vaisselle
  • Télé
  • Linge de maison
  • Congélateur
  • Fer à repasser
  • Grille pain
  • Bouilloire électrique
  • Cafetière
  • Double vitrage

Services

  • Interphone
  • Non fumeurs
  • Ascenseur
  • Piscine
  • Ménage hebdomadaire inclus dans le loyer
  • Garage
  • Concierge
  • Digicode
  • Cave
  • Idéal colocations
  • Local à vélos
  • Place de parking en option
×

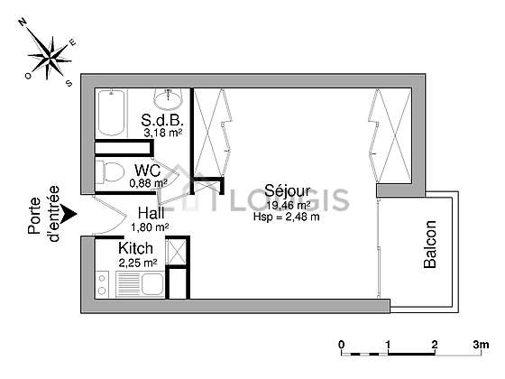
Cet appartement ne dispose pas encore de plan interactif

Cliquer sur une pièce pour voir le détail et les photos..

Terrasse
Séjour
Salle de bain

Détail des pièces

Terrasse

La terrasse de cet appartement vous enchantera. Cet espace extérieur vous permettra de profiter pleinement de, surtout aux beaux jours.

Séjour

Cet appartement est composé d'un salon des fenêtres. Ce salon est meublé et équipé pour rendre votre séjour agréable : 1 canapé(s) lit(s) de 140cm.

Salle de bain

Cet appartement est équipé d'une salle de bain. Cette salle d'eau bénéficie du nécessaire pour votre bien-être au quotidien. Les toilettes sont séparées de la salle de bain et situées dans une pièce indépendante.

Appartement à louer Rue De Cuques, Aix En Provence 13100

Environnement

Standing : résidentiel

Services proches :

bubble-speech-1

8 langues
parlées

hands-1

accompagnement
personnalisé