Wohnung Centre ville -
Wohnung Centre ville -
Wohnung Centre ville -
Wohnung Centre ville -
Wohnung Centre ville -
Wohnung Centre ville -
Wohnung Centre ville -
Wohnung Centre ville -
Wohnung Centre ville -
Wohnung Centre ville -
Wohnung Centre ville -
Wohnung Centre ville -
Wohnung Centre ville -
Wohnung Centre ville -
No1AA23221

Möblierte Studio mit terasse
(Centre ville)

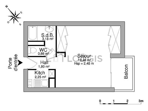
27.4 m² Wohnfläche
1
Studio
Centre ville

Diese Wohnung bereits ist vermietet


Wohnungs Informationen

  • 3. Etage Ohne Aufzug
  • Geschâfte in der Nähe
  • Terasse
eine Beschreibung ist möglich mit dem Format Spanisch Italienisch Portugiesisch Französisch Englisch
27.4 m² Wohnfläche - 27.4 m² Grundfläche

Andere Informationen

Besitzer spricht folgende Sprachen :
Französisch Englisch 

Zusammenarbeit mit Lodgis seit 3 Jahren

Die Energiebilanz

Logement à consommation énergétique excessive

Ausrüstung

  • Terasse
  • Klimaanlage
  • Internet Verbindung
  • Waschmaschine
  • Wäschetrockner
  • Geschirrspülmachine
  • Fernseher
  • Bettwäsche
  • Gefrierschrank
  • Bügeleisen
  • Toaster
  • Wasserkocher
  • Kaffeemaschine
  • Doppel-Verglasung

Services

  • Sprechanlage
  • Nicht-Raucher
  • Aufzug
  • Schwimmbad
  • Inklusive Reinigung
  • Tiefgarage
  • Hausmeister
  • Digicode
  • Keller
  • Wohnungsgemeinschaft
  • Fahrradabstellplatz
  • Parkplatz zusätzlich
×

Diese Wohnung hat noch keinen interaktiven Plan

Klicken Sie auf eine Zimmer, um die Informationen sowie Fotos anzuschauen. .

Terasse
Wohnzimmer
Badezimmer

Zimmer Informationen

Terasse

Wohnzimmer

Fenster - Sofabett (140 cm)

Badezimmer

Wohnung zu vermieten Rue De Cuques, Aix En Provence 13100

Umgebung

Stand : Wohn

Services in der Nähe :

bubble-speech-1

8 gesprochene
Sprachen

hands-1

personalisierte
Begleitung